Substantial detached family residence set on an impressive corner plot
Enviable, stylish accommodation blending period charm with modern design, featuring 2 original Victorian cast iron fireplaces
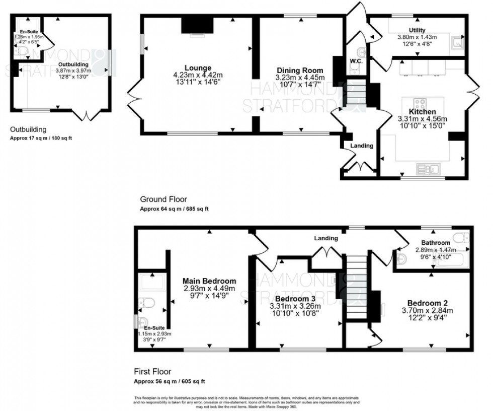
3 generous double bedrooms, including extended main bedroom with walk-in wardrobe and en-suite
Contemporary kitchen/breakfast room enjoying an island, plenty of storage, integrated appliances and utility room
Separate dining room, with space to house an office area, plus a welcoming lounge with bio-ethanol fire and French doors to the garden
Ground floor WC and a modern family bathroom with shower over bath
Gas central heating, underfloor heating to the kitchen and double glazing
Garage conversion currently used as an Airbnb with shower room and garden area - ideal for income or flexible living
Off-road parking for multiple vehicles to the side of the property
Wraparound garden with 2 patio areas and mature hedging creating a strong degree of privacy
SUMMARY
As you enter the property, you are welcomed into a bright entrance hall which sets the tone for the rest of the home. To the left, a dining room offers an ideal space for family meals, leading through to the lounge which provides an inviting setting, centred around a bio-ethanol fire and with French doors opening directly onto the garden. The kitchen, dining room and lounge all benefit from a dual aspect, with the added advantage of the ground floor rooms enjoying a private, non-overlooked position.
At the heart of the home lies the stylish kitchen/breakfast room, thoughtfully designed with a central island, integrated appliances and underfloor heating, creating a sociable and practical space for everyday life, with French doors opening out to a patio dining area - perfect for seamless indoor-outdoor living.
Upstairs, the first floor landing leads to 3 generous double bedrooms, where the main bedroom is particularly impressive, featuring a walk-in wardrobe and a modern en-suite shower room. The remaining bedrooms are served by a contemporary family bathroom with shower over bath. Overall, this is a beautifully presented and versatile home, perfectly suited to modern family living, all set within a generous and private corner plot.
OUTSIDE
Occupying a prominent corner position, the property enjoys a substantial wraparound plot that immediately sets it apart, offering both space and a strong sense of privacy thanks to established hedging. The frontage is neatly presented, with the home set back from the road and framed by mature greenery.
To the side, a generous shingled driveway provides off-road parking for multiple vehicles, creating a practical and well-arranged approach. The gardens extend around the front and sides of the property, predominantly laid to lawn and complemented by 2 patio areas, ideal for outdoor dining and entertaining.
In addition, the property benefits from a converted garage, currently utilised as an Airbnb, complete with heating, kitchen, light, power and a shower room, alongside its own enclosed garden area. This versatile space offers excellent potential for continued income, guest accommodation or a home office (STPP).
LOCATION
Located approximately 3 miles north of Norwich city centre, Old Catton is a charming suburb known for its village atmosphere and historic character. The area boasts attractive period homes, green spaces like Catton Park, and a strong sense of community. Families are drawn to its reputable schools and local amenities, while excellent bus routes provide easy access to the city centre. Old Catton offers a peaceful residential setting without sacrificing connectivity.
AGENTS NOTE
Please be advised we have yet to see building regulation approval for the garage conversion and the extension. No planning permission has been obtained for the garage conversion for holiday accommodation, currently being reviewed by the seller.
SECTION 21- CONNECTED PERSON
Please be advised the Seller is connected to an employee of Hammond & Stratford Estate Agents.
DIRECTIONS
From Mile Cross Lane, turn onto St Faiths Road and follow the road passing Hall School. At the mini roundabout turn left where the property can be found on the right-hand side corner with vehicular access off Fifers Lane.
LOCAL AUTHORITY
Broadland
COUNCIL TAX BAND
C
DISCLAIMER
While we have made diligent efforts to ensure the accuracy of the information relating to each property at the point of listing, you are advised to consult the official local council website for details on conservation areas, flood risks, tree preservation orders, planning applications, and other relevant aspects. These details are for guidance purposes only and we do not seek advice from the seller's legal representative in their preparation. We also strongly advise that you inspect the property and surrounding area on Google Maps and Street View prior to viewing. The photographs do not infer that items shown are included in the sale, the measurements quoted are approximate and the fixtures, fittings and appliances have not been tested, therefore no guarantee can be given that they are in working order. If there is any point which is of particular importance to you then please obtain professional confirmation of it.
GDPR
Should you wish to view one of our properties, we will require certain pieces of personal information from you in order to provide a professional service to you and our client, the seller. The personal information you provide to us will be shared with the seller, but it will not be shared with any other third parties without your consent.
Should you wish to proceed and make an offer on a property, some of the personal information you provide to us will be passed to the seller. Again, it will not be shared with any other third parties without your consent.
More information on how we hold and process your data is available upon request or on our website.
LETTINGS SERVICES
We offer a professional, ARLA accredited Lettings and Management Service via our affiliated agency, Habi Property. If you are considering renting your property in order to purchase, are looking at buy to let or would like a free, no obligation review of your current portfolio then please contact the office to discuss this further.
Substantial detached family residence set on an impressive corner plot
Enviable, stylish accommodation blending period charm with modern design, featuring 2 original Victorian cast iron fireplaces
3 generous double bedrooms, including extended main bedroom with walk-in wardrobe and en-suite
Contemporary kitchen/breakfast room enjoying an island, plenty of storage, integrated appliances and utility room
Separate dining room, with space to house an office area, plus a welcoming lounge with bio-ethanol fire and French doors to the garden
Ground floor WC and a modern family bathroom with shower over bath
Gas central heating, underfloor heating to the kitchen and double glazing
Garage conversion currently used as an Airbnb with shower room and garden area - ideal for income or flexible living
Off-road parking for multiple vehicles to the side of the property
Wraparound garden with 2 patio areas and mature hedging creating a strong degree of privacy
Broadband
Download
Upload
Basic
14Mb/s
1Mb/s
SuperFast
80Mb/s
20Mb/s
UltraFast
1000Mb/s
1000Mb/s
Broadband & mobile data availability at Address shown above is the closest found to the postcode, that has Ofcom data available.