Impressive detached home boasting expansive field views to the front
This bespoke home was designed by the owners to offer space, style and flexibility
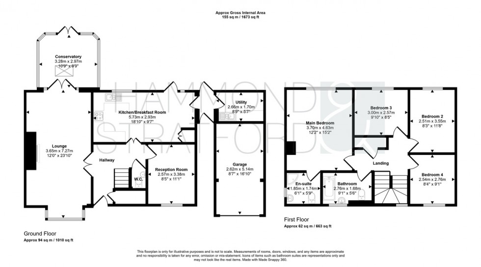
4 bedrooms including the main bedroom that benefits from an en-suite
Kitchen/breakfast room with granite worktop, garden access and separate utility for added practicality
Inviting bay-fronted lounge featuring an inglenook fireplace with a cosy wood burner
2 further reception rooms - a bright conservatory and versatile study/family room
Ground floor WC and first floor family bathroom with 3-piece suite
Driveway and garage with power and light, plus rear garden with lawn and generous patio, perfect for relaxing or entertaining outdoors
Located towards the edge of this popular village - perfect for those seeking a blend of rural charm and convenience
SUMMARY
This impressive detached home was thoughtfully designed by the current owners to provide spacious, flexible accommodation ideal for modern family living.
The ground floor is centred around a welcoming entrance hall leading to a generous bay-fronted lounge, complete with an inglenook fireplace and wood burner, creating a cosy yet substantial main reception space. A further reception room offers versatility as a dining room, playroom or home office.
The kitchen/breakfast room forms the heart of the home, fitted with granite worktops and ample storage, with space for everyday dining and direct access through to a separate utility room for added practicality. A convenient ground floor WC completes the layout.
Upstairs, the property offers 4 well-proportioned bedrooms, including an impressive main bedroom with its own en-suite shower room. The remaining bedrooms are served by a family bathroom, making this a well-balanced and comfortable home perfectly suited to growing families.
OUTSIDE
The exterior of this home offers a harmonious blend of practicality and charm. The rear garden is beautifully enclosed, featuring a generous lawn, mature borders and a spacious patio perfect for entertaining or relaxing. Ideal for families or green-fingered buyers, the garden provides a safe, private haven. To the front, off-road parking completes this desirable and well-presented outside space. A garage with power, light, manual up-and-over door and pitched roof for potential additional storage provides practical functionality for everyday use. The oil tank is located within the boundary and a utility pole is on the edge of the front boundary.
AGENTS NOTE
Please be advised we have yet to see building regulation approval for the extensions on the property.
LOCATION
Mulbarton is a well-served village located just 6 miles south of Norwich, offering a blend of rural charm and everyday convenience. The village features a primary school, local shops, a pub, and a large common with picturesque walks. With easy access to the A140 and regular bus links, it’s a popular choice for families and commuters alike.
DIRECTIONS
From the B1113 running through the village, turn left onto The Common and proceed past the Sports and Social Club as the road becomes Long Lane. Turn left onto the Rosery where the property can be found on the right-hand side just after the turning for Kenningham Close.
LOCAL AUTHORITY
South Norfolk
COUNCIL TAX BAND
E
We offer a professional, ARLA accredited Lettings and Management Service via our affiliated agency, Habi Lettings. If you are considering renting your property in order to purchase, are looking at buy to let or would like a free, no obligation review of your current portfolio then please contact the office to discuss this further.
DISCLAIMER
While we have made diligent efforts to ensure the accuracy of the information relating to each property at the point of listing, you are advised to consult the official local council website for details on conservation areas, flood risks, tree preservation orders, planning applications, and other relevant aspects. These details are for guidance purposes only and we do not seek advice from the seller's legal representative in their preparation. We also strongly advise that you inspect the property and surrounding area on Google Maps and Street View prior to viewing. The photographs do not infer that items shown are included in the sale, the measurements quoted are approximate and the fixtures, fittings and appliances have not been tested, therefore no guarantee can be given that they are in working order. If there is any point which is of particular importance to you then please obtain professional confirmation of it.
Should you wish to view one of our properties, we will require certain pieces of personal information from you in order to provide a professional service to you and our client, the seller. The personal information you provide to us will be shared with the seller, but it will not be shared with any other third parties without your consent.
Should you wish to proceed and make an offer on a property, some of the personal information you provide to us will be passed to the seller. Again, it will not be shared with any other third parties without your consent.
More information on how we hold and process your data is available upon request or on our website.
Guide Price £550,000 - £575,000
Impressive detached home boasting expansive field views to the front
This bespoke home was designed by the owners to offer space, style and flexibility
4 bedrooms including the main bedroom that benefits from an en-suite
Kitchen/breakfast room with granite worktop, garden access and separate utility for added practicality
Inviting bay-fronted lounge featuring an inglenook fireplace with a cosy wood burner
2 further reception rooms - a bright conservatory and versatile study/family room
Ground floor WC and first floor family bathroom with 3-piece suite
Driveway and garage with power and light, plus rear garden with lawn and generous patio, perfect for relaxing or entertaining outdoors
Located towards the edge of this popular village - perfect for those seeking a blend of rural charm and convenience
Broadband
Download
Upload
Basic
13Mb/s
1Mb/s
SuperFast
77Mb/s
19Mb/s
UltraFast
1800Mb/s
220Mb/s
Broadband & mobile data availability at Address shown above is the closest found to the postcode, that has Ofcom data available.