SUMMARY
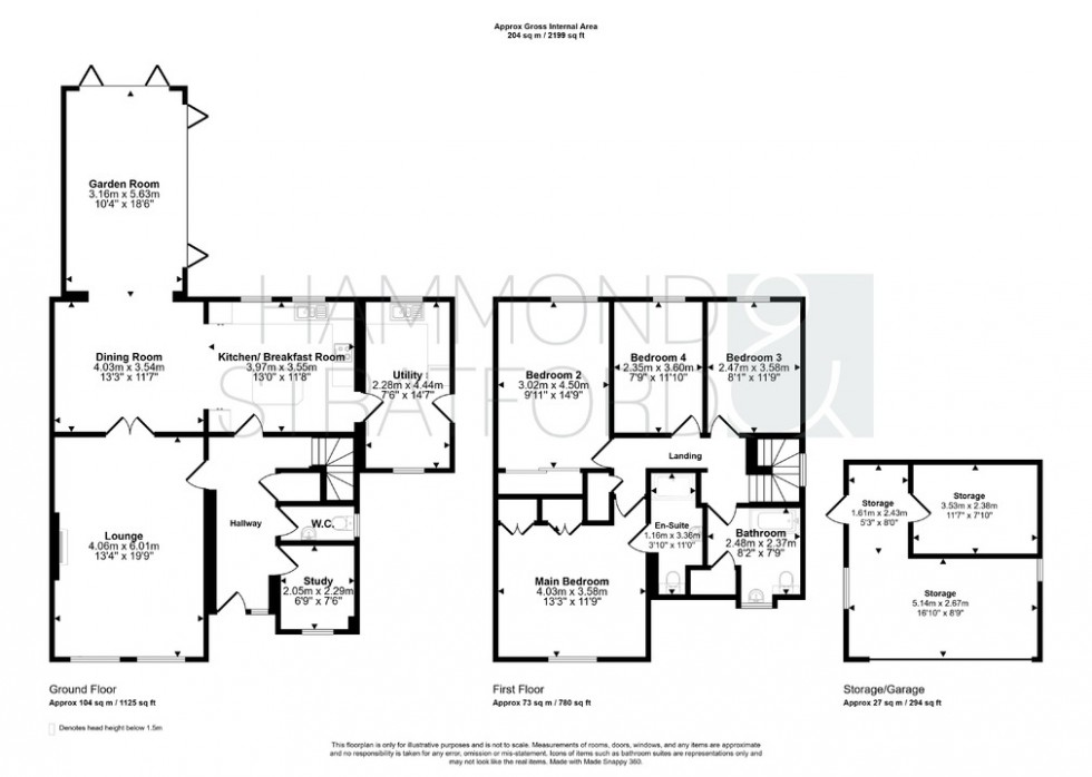
Step inside this substantial detached home, offering over 1,900 sq/ft. of well-presented and versatile accommodation. The hallway leads through to a generous lounge, where twin front-facing windows flood the space with natural light and a feature fireplace creates a warm focal point. A...
A must-see home - an opportunity not to be missed!
Detached family home set on an approx. 0.21 acre plot (STMS), enjoying a village location close to Wymondham College
Boasting over 1,900 sq/ft. of well-presented accommodation with the added benefit of no chain!
Modern kitchen/breakfast room featuring an island unit, integrated appliances and separate utility
Stunning garden room extension flowing seamlessly into the dining area - ideal for entertaining!
Spacious 19'9 lounge with twin windows to the front and separate study, a great versatile space
4 first floor bedrooms, including an en-suite shower room and family bathroom, plus ground floor WC
Oil fired central heating, solar panels, underfloor heating to the bathroom and double glazing
Gated off-road parking for multiple vehicles and double garage currently used as storage
Generous south-facing rear garden with an extensive lawn, patio seating area and pond
SUMMARY
Step inside this substantial detached home, offering over 1,900 sq/ft. of well-presented and versatile accommodation. The hallway leads through to a generous lounge, where twin front-facing windows flood the space with natural light and a feature fireplace creates a warm focal point. A separate study provides a flexible space, ideal for home working or hobbies, while a convenient WC completes the ground floor.
At the heart of the home lies the modern kitchen/breakfast room, thoughtfully designed with an island unit, integrated appliances, ample workspace and adjacent utility - perfect for busy family mornings or social cooking. Flowing seamlessly from the kitchen is the dining area, opening into a stunning garden room extension. With its vaulted ceiling and expansive glazing, this impressive space brings the outside in and creates the ultimate setting for entertaining, relaxing or simply enjoying views across the garden.
Upstairs, 4 well-proportioned bedrooms offer comfortable accommodation for growing families. The main bedroom benefits from an en-suite shower room, while the remaining bedrooms are served by a stylish family bathroom featuring underfloor heating. This is a thoughtfully laid-out family home, designed for modern living, entertaining and everyday comfort in equal measure.
OUTSIDE
Set within an impressive south-facing plot of approximately 0.21 acres, the property enjoys a wonderful sense of space. A gated, gently sloping driveway welcomes you in, providing generous off-road parking for multiple vehicles and creating an attractive approach to the home. To the side, a double garage - currently utilised for storage - is set to be reinstated to its original use, offering excellent versatility.
The rear garden is fully enclosed and predominantly laid to lawn, framed by mature hedging and fencing. A man-made pond adds character, while the expansive patio terrace, accessed directly from the garden room, provides an ideal space for outdoor dining, entertaining or simply relaxing in the sunshine. The oil tank, septic tank and a utility pole are all located within the boundary.
LOCATION
Conveniently located near Attleborough, Besthorpe is a well-connected village with a countryside feel. Residents enjoy rural surroundings with the bonus of being less than 2 miles from Attleborough, where they can take advantage of supermarkets, primary and secondary schools, a leisure centre, and excellent transport links via the A11, bus routes, plus a mainline train station in Attleborough to Norwich, Cambridge and beyond.
DIRECTIONS
Leave Attleborough via Norwich Road, B1077 towards the A11. Shortly before joining the A11 turn left into a continuation of Norwich Road and follow the road round. The property can then be found on the right-hand side shortly after the trading estate.
AGENTS NOTE
Please be advised we have yet to see building regulations approval for the extension.
LOCAL AUTHORITY
Breckland
COUNCIL TAX BAND
E
We offer a professional, ARLA accredited Lettings and Management Service via our affiliated agency, Habi Lettings. If you are considering renting your property in order to purchase, are looking at buy to let or would like a free, no obligation review of your current portfolio then please contact the office to discuss this further.
DISCLAIMER
While we have made diligent efforts to ensure the accuracy of the information relating to each property at the point of listing, you are advised to consult the official local council website for details on conservation areas, flood risks, tree preservation orders, planning applications, and other relevant aspects. These details are for guidance purposes only and we do not seek advice from the seller's legal representative in their preparation. We also strongly advise that you inspect the property and surrounding area on Google Maps and Street View prior to viewing. The photographs do not infer that items shown are included in the sale, the measurements quoted are approximate and the fixtures, fittings and appliances have not been tested, therefore no guarantee can be given that they are in working order. If there is any point which is of particular importance to you then please obtain professional confirmation of it.
Should you wish to view one of our properties, we will require certain pieces of personal information from you in order to provide a professional service to you and our client, the seller. The personal information you provide to us will be shared with the seller, but it will not be shared with any other third parties without your consent.
Should you wish to proceed and make an offer on a property, some of the personal information you provide to us will be passed to the seller. Again, it will not be shared with any other third parties without your consent.
More information on how we hold and process your data is available upon request or on our website.
A must-see home - an opportunity not to be missed!
Detached family home set on an approx. 0.21 acre plot (STMS), enjoying a village location close to Wymondham College
Boasting over 1,900 sq/ft. of well-presented accommodation with the added benefit of no chain!
Modern kitchen/breakfast room featuring an island unit, integrated appliances and separate utility
Stunning garden room extension flowing seamlessly into the dining area - ideal for entertaining!
Spacious 19'9 lounge with twin windows to the front and separate study, a great versatile space
4 first floor bedrooms, including an en-suite shower room and family bathroom, plus ground floor WC
Oil fired central heating, solar panels, underfloor heating to the bathroom and double glazing
Gated off-road parking for multiple vehicles and double garage currently used as storage
Generous south-facing rear garden with an extensive lawn, patio seating area and pond
Broadband
Download
Upload
Basic
4Mb/s
1Mb/s
SuperFast
80Mb/s
20Mb/s
UltraFast
1757Mb/s
215Mb/s
Broadband & mobile data availability at Address shown above is the closest found to the postcode, that has Ofcom data available.