SUMMARY
This extended home offers an impressive blend of space, light and versatility. Enter via the welcoming hallway into the heart of the home - the open plan living area features a kitchen/breakfast room, fitted with integrated appliances, flowing through to the formal dining area and into...
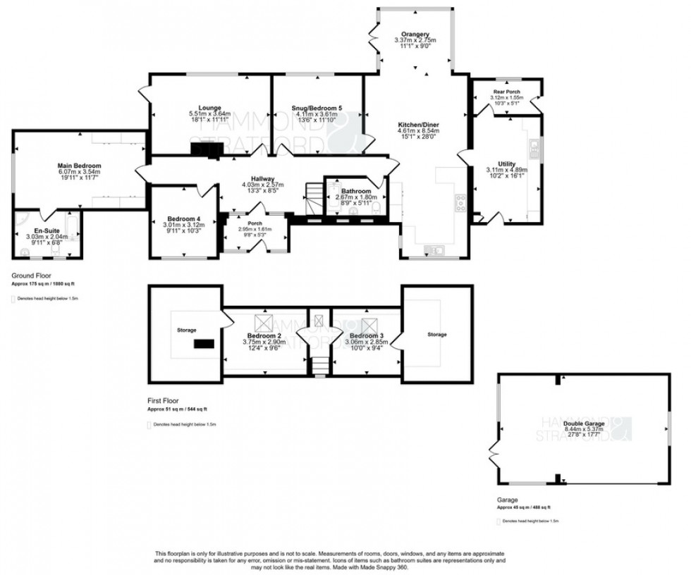
Extended detached chalet on an approx. 0.65 acre south-facing plot (STMS)
Boasting approx. sq/ft. of immaculately presented, flexible accommodation
Spacious kitchen/breakfast room with flow-through to dining area and stunning orangery
Orangery flooded with natural light enjoying a roof lantern and views over the garden
Additional reception rooms including a cosy lounge with focal fireplace and snug/bedroom 5
4 bedrooms over the 2 floors including a spacious main bedroom with 4-piece en-suite
Modern ground floor family bathroom with 3-piece suite and generous utility
Off-road parking for multiple vehicles on driveway, plus double garage with workshop area
Wraparound garden, predominantly lawned with bordered flowerbeds and covered seating area
SUMMARY
This extended home offers an impressive blend of space, light and versatility. Enter via the welcoming hallway into the heart of the home - the open plan living area features a kitchen/breakfast room, fitted with integrated appliances, flowing through to the formal dining area and into a show-stopping orangery with roof lantern - ideal for entertaining or unwinding with garden views.
2 further reception rooms include a cosy lounge with fireplace and a snug/home office which could serve as a 5th bedroom if required. The ground floor also includes a spacious utility room, family bathroom and 2 bedrooms with the main bedroom enjoying a luxurious en-suite, while upstairs has 2 further bedrooms.
The layout is ideal for multi generational living or growing families.
OUTSIDE
Set behind ornate wrought-iron gates, this stunning home enjoys a generous 0.65 acre (STMS) south-facing plot. A sweeping driveway provides extensive off-road parking leading to a detached double garage with pitched roof, electric roller door, plus light and power - ideal for storage, hobbies or conversion (STPP).
The expansive gardens wrap around the property and are predominantly laid to lawn, bordered by mature hedging and established trees for privacy. Flower beds and vibrant planting add seasonal colour, while a spacious patio and covered seating area provide the perfect outdoor entertaining space in all weathers. The oil tank and septic tank are located within the boundary.
LOCATION
Bunwell is a peaceful and well-connected South Norfolk village offering an ideal blend of countryside living and convenience. Located around 5 miles from Attleborough and 15 miles from Norwich, it provides a rural retreat within easy reach of major amenities and transport links, including the A11 and rail services. The village enjoys a strong sense of community, centred around its well-regarded primary school, local church, and village hall which hosts a variety of events and clubs. Surrounded by open farmland and scenic walking routes, Bunwell is perfect for families, nature lovers, and those seeking a slower pace of life while staying well-connected to the wider region.
DIRECTIONS
From the B1113 The Turnpike, pass the village hall on your left and turn right onto the Old Turnpike. Follow the road round the corner where the property can be found set back from the road on the right-hand side.
AGENTS NOTE
We have been advised by the Seller that the septic tank does not conform to current regulations.
Please be advised we are yet to see documentation confirming that the extension complies to building regulations.
LOCAL AUTHORITY
South Norfolk
COUNCIL TAX BAND
E
DISCLAIMER
While we have made diligent efforts to ensure the accuracy of the information relating to each property at the point of listing, you are advised to consult the official local council website for details on conservation areas, flood risks, tree preservation orders, planning applications, and other relevant aspects. These details are for guidance purposes only and we do not seek advice from the seller's legal representative in their preparation. We also strongly advise that you inspect the property and surrounding area on Google Maps and Street View prior to viewing. The photographs do not infer that items shown are included in the sale, the measurements quoted are approximate and the fixtures, fittings and appliances have not been tested, therefore no guarantee can be given that they are in working order. If there is any point which is of particular importance to you then please obtain professional confirmation of it.
GDPR
Should you wish to view one of our properties, we will require certain pieces of personal information from you in order to provide a professional service to you and our client, the seller. The personal information you provide to us will be shared with the seller, but it will not be shared with any other third parties without your consent.
Should you wish to proceed and make an offer on a property, some of the personal information you provide to us will be passed to the seller. Again, it will not be shared with any other third parties without your consent.
More information on how we hold and process your data is available upon request or on our website.
LETTINGS SERVICES
We offer a professional, ARLA accredited Lettings and Management Service via our affiliated agency, Habi Property. If you are considering renting your property in order to purchase, are looking at buy to let or would like a free, no obligation review of your current portfolio then please contact the office to discuss this further.
Guide Price £650,000 - £700,000
Extended detached chalet on an approx. 0.65 acre south-facing plot (STMS)
Boasting approx. sq/ft. of immaculately presented, flexible accommodation
Spacious kitchen/breakfast room with flow-through to dining area and stunning orangery
Orangery flooded with natural light enjoying a roof lantern and views over the garden
Additional reception rooms including a cosy lounge with focal fireplace and snug/bedroom 5
4 bedrooms over the 2 floors including a spacious main bedroom with 4-piece en-suite
Modern ground floor family bathroom with 3-piece suite and generous utility
Off-road parking for multiple vehicles on driveway, plus double garage with workshop area
Wraparound garden, predominantly lawned with bordered flowerbeds and covered seating area
Broadband
Download
Upload
Basic
12Mb/s
2Mb/s
SuperFast
28Mb/s
5Mb/s
UltraFast
1600Mb/s
1000Mb/s
Broadband & mobile data availability at Address shown above is the closest found to the postcode, that has Ofcom data available.