Tucked away at the end of a private cul-de-sac in the popular village of Mulbarton, this detached bungalow is offered with No Onward Chain. Enjoying off-road parking, a double garage and fantastic potential for an idyllic rear garden - this property is ready for you to make your mark - call now...
Detached bungalow enjoying a private position within a desirable location
Offered with No Onward Chain!
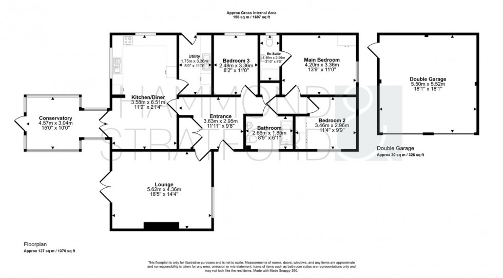
3 good-sized bedrooms including a 13'9 main bedroom with an en-suite, plus family bathroom
Contemporary 21'4 kitchen/diner with integrated appliances and separate utility room
Spacious dual aspect lounge enjoying French doors to garden and modern electric fire
Bright conservatory with garden access, perfect for relaxing year-round
Detached double garage with electric doors, lighting and power, plus off-road parking
South-facing garden with fantastic scope to create a private oasis with uninterrupted field views
Ideally situated for Mulbarton Common, schools, Co-op store and swift city access
SUMMARY
Tucked away at the end of a private cul-de-sac in the popular village of Mulbarton, this detached bungalow is offered with No Onward Chain. Enjoying off-road parking, a double garage and fantastic potential for an idyllic rear garden - this property is ready for you to make your mark - call now to view!
OUTSIDE
Enjoying a cul-de-sac location, this detached bungalow enjoys an attractive frontage with a driveway providing off-road parking, complemented by a detached double garage with twin electric up-and-over doors, lighting and power. The approx. 30' max. south-facing rear garden offers excellent potential for landscaping. Currently featuring paved patio areas, mature planting and raised beds, the garden backs onto open fields, providing a superb sense of space and countryside views. Positioned in a tucked-away location, the property is still within easy reach of Mulbarton's local amenities, including shops, schools and transport links - offering the perfect blend of tranquillity and convenience.
DIRECTIONS
From the B1113 running through Mulbarton, turn onto The Common and pass the Church and Social Club. Continue on this road as it becomes Long Lane, then left onto the Rosary. Turn right, opposite open fields, into Kenningham Close, a private road, where the property can be found at the end on the right-hand side.
what3words ///spacing.enclosing.observe
LOCAL AUTHORITY
South Norfolk
COUNCIL TAX BAND
E
We offer a professional, ARLA accredited Lettings and Management Service via our affiliated agency, Habi Lettings. If you are considering renting your property in order to purchase, are looking at buy to let or would like a free, no obligation review of your current portfolio then please contact the office to discuss this further.
DISCLAIMER
While we have made diligent efforts to ensure the accuracy of the information relating to each property at the point of listing, you are advised to consult the official local council website for details on conservation areas, flood risks, tree preservation orders, planning applications, and other relevant aspects. These details are for guidance purposes only and we do not seek advice from the seller's legal representative in their preparation. We also strongly advise that you inspect the property and surrounding area on Google Maps and Street View prior to viewing. The photographs do not infer that items shown are included in the sale, the measurements quoted are approximate and the fixtures, fittings and appliances have not been tested, therefore no guarantee can be given that they are in working order. If there is any point which is of particular importance to you then please obtain professional confirmation of it.
Should you wish to view one of our properties, we will require certain pieces of personal information from you in order to provide a professional service to you and our client, the seller. The personal information you provide to us will be shared with the seller, but it will not be shared with any other third parties without your consent.
Should you wish to proceed and make an offer on a property, some of the personal information you provide to us will be passed to the seller. Again, it will not be shared with any other third parties without your consent.
More information on how we hold and process your data is available upon request or on our website.
AGENTS NOTE
Please be advised that some of the images are computer generated to show the potential of this property.
Guide Price £350,000 - £375,000
Detached bungalow enjoying a private position within a desirable location
Offered with No Onward Chain!
3 good-sized bedrooms including a 13'9 main bedroom with an en-suite, plus family bathroom
Contemporary 21'4 kitchen/diner with integrated appliances and separate utility room
Spacious dual aspect lounge enjoying French doors to garden and modern electric fire
Bright conservatory with garden access, perfect for relaxing year-round
Detached double garage with electric doors, lighting and power, plus off-road parking
South-facing garden with fantastic scope to create a private oasis with uninterrupted field views
Ideally situated for Mulbarton Common, schools, Co-op store and swift city access
Broadband
Download
Upload
Basic
7Mb/s
0.8Mb/s
SuperFast
72Mb/s
18Mb/s
UltraFast
1800Mb/s
220Mb/s
Broadband & mobile data availability at 5, KENNINGHAM CLOSE NR148WA Address shown above is the closest found to the postcode, that has Ofcom data available.