This immaculately presented detached home enjoys a prestigious location on a modern development, close to the NNUH, UEA and major road links. Enjoying a stunning garden room extension, creating a bright and versatile living space, the property also benefits from a south-west garden, garage, EV...
Beautifully presented family home, situated in a sought-after modern development
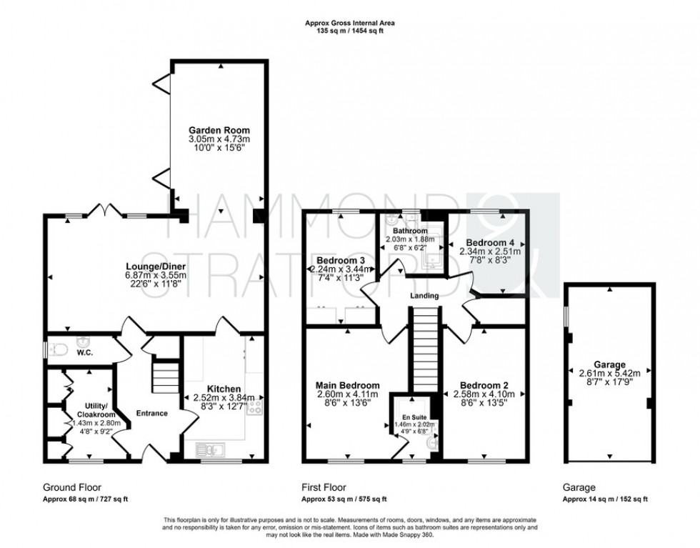
22'6 lounge/diner enjoying double doors to the garden - ideal for entertaining!
Stunning 15'6 garden room to the rear - a versatile space for family living
Contemporary kitchen with integrated appliances and separate utility/cloakroom
4 good-sized first floor bedrooms including an en-suite to the main bedroom
Ground floor WC and first floor family bathroom
Single garage with light and power, off-road parking and EV charger installed
South-west rear garden, landscaped with artificial lawn, raised decking and patio area
Ideally positioned for access to the UEA, NNUH, city centre and road links
SUMMARY
This immaculately presented detached home enjoys a prestigious location on a modern development, close to the NNUH, UEA and major road links. Enjoying a stunning garden room extension, creating a bright and versatile living space, the property also benefits from a south-west garden, garage, EV charging point and off-road parking, offering superb practicality and style in equal measure - do not miss out!
OUTSIDE
The property enjoys a driveway offering tandem parking, an EV charging point and access to a single garage with power and lighting. The approx. 35' max. south-west facing garden has been designed for low maintenance living and year-round enjoyment. With artificial lawn, patio areas and a raised decking space, it provides a serene and stylish setting for both relaxing and entertaining. A particular highlight is the excellent flow between indoor and outdoor spaces, with French doors from the lounge/diner and bifold doors from the garden room leading directly onto the garden, creating a perfect extension of the living space.
LOCATION
Cringleford is a highly desirable suburb located approximately 2 miles southwest of Norwich city centre. Known for its blend of historic charm and modern developments, the village offers excellent amenities, including a well-regarded primary school, local shops, and green spaces. Its close proximity to Eaton-just a short drive or bus ride away-provides residents with additional shopping options, eateries, and access to the University of East Anglia. Cringleford's location near the A11 also makes it ideal for commuters heading towards Cambridge and London.
AGENTS NOTE
Please be advised there is ongoing development in the area.
DIRECTIONS
Enter the Round House Park development via Round House Way, from Newmarket Road/A11. At the first roundabout take the first exit before turning right into The Pines at the second roundabout just after the new Roundhouse Gate development. Turn left into Verbena Road, the road becomes Rose Drive, before turning right into Honeysuckle Close, where the property can be found on the left-hand side.
LOCAL AUTHORITY
South Norfolk
COUNCIL TAX BAND
D
We offer a professional, ARLA accredited Lettings and Management Service via our affiliated agency, Habi Lettings. If you are considering renting your property in order to purchase, are looking at buy to let or would like a free, no obligation review of your current portfolio then please contact the office to discuss this further.
DISCLAIMER
While we have made diligent efforts to ensure the accuracy of the information relating to each property at the point of listing, you are advised to consult the official local council website for details on conservation areas, flood risks, tree preservation orders, planning applications, and other relevant aspects. These details are for guidance purposes only and we do not seek advice from the seller's legal representative in their preparation. We also strongly advise that you inspect the property and surrounding area on Google Maps and Street View prior to viewing. The photographs do not infer that items shown are included in the sale, the measurements quoted are approximate and the fixtures, fittings and appliances have not been tested, therefore no guarantee can be given that they are in working order. If there is any point which is of particular importance to you then please obtain professional confirmation of it.
Should you wish to view one of our properties, we will require certain pieces of personal information from you in order to provide a professional service to you and our client, the seller. The personal information you provide to us will be shared with the seller, but it will not be shared with any other third parties without your consent.
Should you wish to proceed and make an offer on a property, some of the personal information you provide to us will be passed to the seller. Again, it will not be shared with any other third parties without your consent.
More information on how we hold and process your data is available upon request or on our website.
Guide Price £400,000 - £425,000
Beautifully presented family home, situated in a sought-after modern development
22'6 lounge/diner enjoying double doors to the garden - ideal for entertaining!
Stunning 15'6 garden room to the rear - a versatile space for family living
Contemporary kitchen with integrated appliances and separate utility/cloakroom
4 good-sized first floor bedrooms including an en-suite to the main bedroom
Ground floor WC and first floor family bathroom
Single garage with light and power, off-road parking and EV charger installed
South-west rear garden, landscaped with artificial lawn, raised decking and patio area
Ideally positioned for access to the UEA, NNUH, city centre and road links
Broadband
Download
Upload
Basic
2Mb/s
0.4Mb/s
SuperFast
51Mb/s
9Mb/s
UltraFast
1800Mb/s
220Mb/s
Broadband & mobile data availability at 1, HONEYSUCKLE CLOSE NR47SY Address shown above is the closest found to the postcode, that has Ofcom data available.