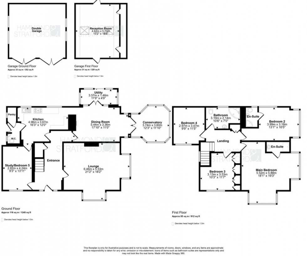
Substantial detached family home offering over 2,150 sq/ft. of highly versatile accommodation
Occupying approx. 0.41 acres of private grounds, enjoying expansive lawns, mature planting and patio
4 first floor bedrooms, including a dual aspect main bedroom with twin bay windows and an en-suite
Versatile ground floor study offering excellent potential as a 5th bedroom, ideal for multi-generational living or home working
Exceptional 21' dual aspect lounge with bay windows, creating a bright and inviting main living space
Well-appointed kitchen featuring integrated appliances, walk-in pantry and separate utility area
Spacious dining room with log burner and air conditioning, seamlessly flowing into a conservatory
Additional en-suite to bedroom 2, family bathroom, ground floor WC, double glazing, gas heating and income-generating solar panels
Off-road parking and double garage with a substantial first floor reception room, ideal for home working or leisure
SUMMARY
This substantial detached residence offers a superb sense of space and versatility, perfectly suited to family living. The dual aspect lounge is a bright and inviting space, enhanced by bay windows and a feature fireplace, creating an ideal setting for both relaxing and entertaining. The dining room offers a more intimate atmosphere, complete with a charming log burner and air conditioning, flowing seamlessly into the conservatory. The kitchen is well-appointed featuring integrated appliances and a separate pantry cupboard, plus a useful utility area. A versatile ground floor study completes the layout, offering excellent flexibility as a 5th bedroom, guest accommodation or home office.
To the first floor, a spacious landing leads to 4 double bedrooms with the main bedroom extending to over 18' with dual aspect windows and its own en-suite. A second bedroom also benefits from en-suite facilities, while the remaining bedrooms are served by a family bathroom. Further enhancing the home’s appeal are the owned solar panels with battery storage, providing improved energy efficiency and an additional income.
This is a rare opportunity to acquire a spacious and highly versatile family home, set within impressive grounds and enjoying stunning countryside views, all within a sought-after and well-connected location.
OUTSIDE
Occupying an elevated and highly private position, the property enjoys a wonderful setting with views across open countryside, creating a real sense of space and tranquillity rarely found. The property sits within an impressive plot of approx. 0.41 acres (STMS), offering a superb balance of formal garden, open lawn and established boundaries, ideal for both families and those seeking a more rural lifestyle.
To the front, the home is approached via a gated entrance leading to a generous driveway, with attractive frontage and a pleasant approach that enhances the overall sense of arrival. The driveway provides extensive off-road parking for multiple vehicles and leads to the detached double garage with light and power, along with a highly versatile reception room above - ideal for use as a home office, studio or gym.
The rear garden is a particular highlight, predominantly laid to lawn and interspersed with mature trees, established planting and patio areas perfectly suited for outdoor dining and entertaining. The elevated position ensures the gardens enjoy both privacy and stunning outlooks across the surrounding countryside, while a hidden air raid shelter adds a unique and intriguing piece of history to this already exceptional home.
LOCATION
Located about 4 miles northwest of Norwich city centre, Hellesdon is a well-established suburb offering a mix of residential housing, shopping centres, and green spaces. The area is served by several schools and has good transport links to the city centre and Norwich International Airport. Hellesdon's blend of convenience and community makes it an attractive option for families and professionals alike.
AGENTS NOTE
Please be advised that some of the images are computer generated. Please be advised we are yet to see building regulations for the garage, accommodation above and conservatory.
DIRECTIONS
Leave the city centre via Aylsham Road, A1402 towards Hellesdon. At the junction and roundabout with Boundary Road/Mile Cross Lane take the exit for Boundary Lane. Follow the road over the traffic lights onto Sweet Briar Road, then turn right onto Hellesdon Hall Road at the next set of traffic lights. Turn right onto Low Road, where the property can be found on the right-hand side after the open green space.
LOCAL AUTHORITY
Broadland
COUNCIL TAX BAND
F
DISCLAIMER
While we have made diligent efforts to ensure the accuracy of the information relating to each property at the point of listing, you are advised to consult the official local council website for details on conservation areas, flood risks, tree preservation orders, planning applications, and other relevant aspects. These details are for guidance purposes only and we do not seek advice from the seller's legal representative in their preparation. We also strongly advise that you inspect the property and surrounding area on Google Maps and Street View prior to viewing. The photographs do not infer that items shown are included in the sale, the measurements quoted are approximate and the fixtures, fittings and appliances have not been tested, therefore no guarantee can be given that they are in working order. If there is any point which is of particular importance to you then please obtain professional confirmation of it.
GDPR
Should you wish to view one of our properties, we will require certain pieces of personal information from you in order to provide a professional service to you and our client, the seller. The personal information you provide to us will be shared with the seller, but it will not be shared with any other third parties without your consent.
Should you wish to proceed and make an offer on a property, some of the personal information you provide to us will be passed to the seller. Again, it will not be shared with any other third parties without your consent.
More information on how we hold and process your data is available upon request or on our website.
LETTINGS SERVICES
We offer a professional, ARLA accredited Lettings and Management Service via our affiliated agency, Habi Property. If you are considering renting your property in order to purchase, are looking at buy to let or would like a free, no obligation review of your current portfolio then please contact the office to discuss this further.
Guide Price £725,000 - £750,000
Substantial detached family home offering over 2,150 sq/ft. of highly versatile accommodation
Occupying approx. 0.41 acres of private grounds, enjoying expansive lawns, mature planting and patio
4 first floor bedrooms, including a dual aspect main bedroom with twin bay windows and an en-suite
Versatile ground floor study offering excellent potential as a 5th bedroom, ideal for multi-generational living or home working
Exceptional 21' dual aspect lounge with bay windows, creating a bright and inviting main living space
Well-appointed kitchen featuring integrated appliances, walk-in pantry and separate utility area
Spacious dining room with log burner and air conditioning, seamlessly flowing into a conservatory
Additional en-suite to bedroom 2, family bathroom, ground floor WC, double glazing, gas heating and income-generating solar panels
Off-road parking and double garage with a substantial first floor reception room, ideal for home working or leisure
Broadband
Download
Upload
Basic
21Mb/s
3Mb/s
SuperFast
Not Available
Not Available
UltraFast
1800Mb/s
220Mb/s
Broadband & mobile data availability at 100, LOW ROAD NR65AS Address shown above is the closest found to the postcode, that has Ofcom data available.