SUMMARY
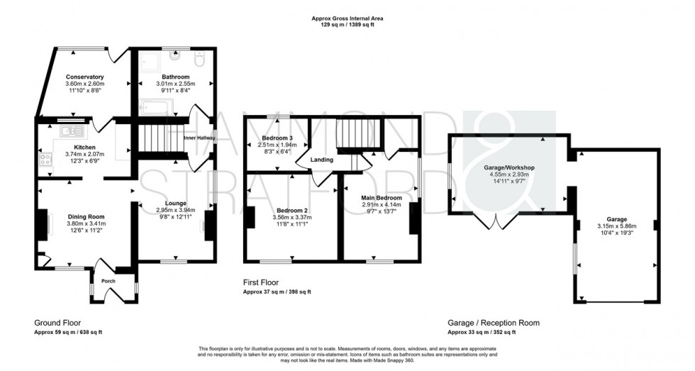
Blending period character with modern comfort, this semi-detached cottage on the edge of a popular market town offers inviting living space. The ground floor boasts a dual-aspect lounge that flows naturally into the dining room, a kitchen leading to the conservatory, and a stylish...
Semi-detached cottage, of part-period construction, on the edge of a popular market town
Sold with no onward chain!
This property seamlessly combines traditional charm with practical modern living
3 first floor bedrooms; 2 benefitting from integrated storage for added convenience
Kitchen with tiled splashback, space for freestanding appliances and a barn-style door in to the conservatory
3 reception rooms including a striking dual aspect lounge with seamless dining room flow - perfect for entertaining and everyday family living
Spacious, ground floor 4-piece bathroom with separate shower enclosure and bath
Split-level garden with patio, lawn and mature borders
Generous gated driveway and L-shaped garage with power and light
Blending rural tranquillity with excellent access to Attleborough’s shops, schools, road and rail links
SUMMARY
Blending period character with modern comfort, this semi-detached cottage on the edge of a popular market town offers inviting living space. The ground floor boasts a dual-aspect lounge that flows naturally into the dining room, a kitchen leading to the conservatory, and a stylish 4-piece bathroom. Upstairs, 3 bedrooms include the main bedroom with built-in storage for added practicality. Outside, a gated driveway, L-shaped garage and split-level garden with patio and lawn create plenty of space. Tucked on the edge of Attleborough, it combines rural tranquillity with excellent access to shops, schools and rail links.
OUTSIDE
The cottage is set behind a low brick wall with mature shrubs providing privacy from the road, and a shingled driveway providing off-road parking. A standout feature is the L-shaped garage with power, light and a pitched roof - ideal for storage, home gym or workspace. To the rear, the split-level garden includes a patio area, raised lawn with mature trees and direct access into the garage, creating a charming and functional outdoor retreat.
LOCATION
Nestled in the heart of Norfolk, Attleborough is a thriving market town that perfectly blends traditional charm with modern convenience. With its vibrant weekly market, schools and a growing selection of independent shops, cafés and restaurants, it’s easy to see why Attleborough is a popular choice for families and commuters alike. The town offers superb transport links, including a mainline railway station with direct services to Norwich and Cambridge, as well as easy access to the A11. Surrounded by picturesque countryside and close to Thetford Forest, Attleborough provides a relaxed, community-focused lifestyle with all the essentials on your doorstep.
DIRECTIONS
Exit the A11 towards Attleborough, turn left onto Norwich Road B1077 and turn left onto Mill Lane opposite the new development. Follow the road to the end, where the property can be found almost ahead of you.
LOCAL AUTHORITY
Breckland District Council
COUNCIL TAX BAND
B
DISCLAIMER
While we have made diligent efforts to ensure the accuracy of the information relating to each property at the point of listing, you are advised to consult the official local council website for details on conservation areas, flood risks, tree preservation orders, planning applications, and other relevant aspects. These details are for guidance purposes only and we do not seek advice from the seller's legal representative in their preparation. We also strongly advise that you inspect the property and surrounding area on Google Maps and Street View prior to viewing. The photographs do not infer that items shown are included in the sale, the measurements quoted are approximate and the fixtures, fittings and appliances have not been tested, therefore no guarantee can be given that they are in working order. If there is any point which is of particular importance to you then please obtain professional confirmation of it.
GDPR
Should you wish to view one of our properties, we will require certain pieces of personal information from you in order to provide a professional service to you and our client, the seller. The personal information you provide to us will be shared with the seller, but it will not be shared with any other third parties without your consent.
Should you wish to proceed and make an offer on a property, some of the personal information you provide to us will be passed to the seller. Again, it will not be shared with any other third parties without your consent.
More information on how we hold and process your data is available upon request or on our website.
LETTINGS SERVICES
We offer a professional, ARLA accredited Lettings and Management Service via our affiliated agency, Habi Property. If you are considering renting your property in order to purchase, are looking at buy to let or would like a free, no obligation review of your current portfolio then please contact the office to discuss this further.
Semi-detached cottage, of part-period construction, on the edge of a popular market town
Sold with no onward chain!
This property seamlessly combines traditional charm with practical modern living
3 first floor bedrooms; 2 benefitting from integrated storage for added convenience
Kitchen with tiled splashback, space for freestanding appliances and a barn-style door in to the conservatory
3 reception rooms including a striking dual aspect lounge with seamless dining room flow - perfect for entertaining and everyday family living
Spacious, ground floor 4-piece bathroom with separate shower enclosure and bath
Split-level garden with patio, lawn and mature borders
Generous gated driveway and L-shaped garage with power and light
Blending rural tranquillity with excellent access to Attleborough’s shops, schools, road and rail links
Broadband
Download
Upload
Basic
13Mb/s
1Mb/s
SuperFast
42Mb/s
8Mb/s
UltraFast
4800Mb/s
3798Mb/s
Broadband & mobile data availability at Address shown above is the closest found to the postcode, that has Ofcom data available.