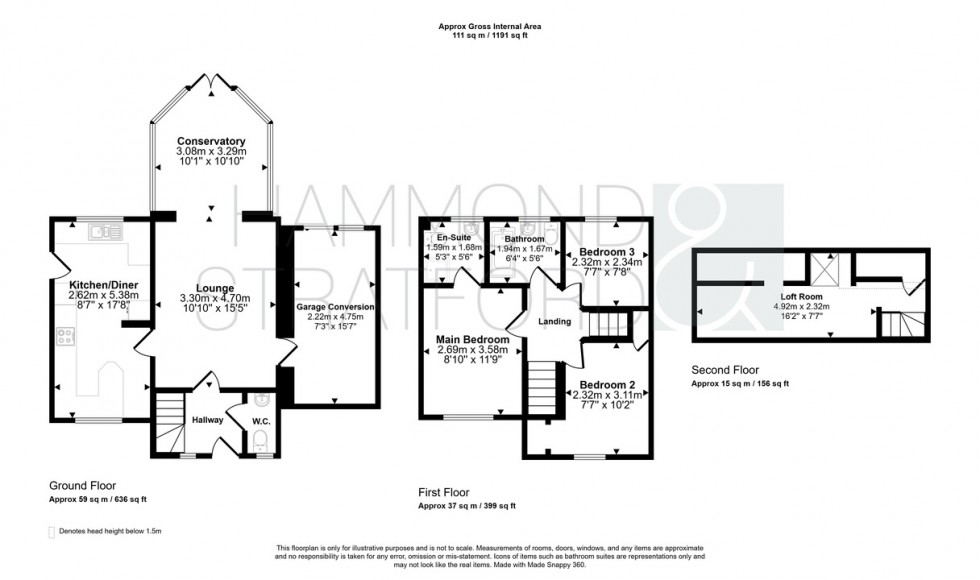
Step into this well-presented detached family home and you’re greeted by a welcoming entrance hall with a downstairs WC. To your left, the modern kitchen/diner features sleek cabinetry, integrated appliances and space for dining - perfect for everyday living.
Straight ahead, the central...
Detached home nestled on a sought‑after corner plot in the popular village of Hethersett
Designed with family living in mind, this home delivers flexible spaces perfect for working, relaxing and entertaining
Contemporary kitchen/diner with fitted units and integrated appliances
Spacious lounge leading into a bright conservatory - a fantastic extra reception space
3 good-sized first floor bedrooms including an en-suite to the main bedroom, plus loft room
Converted garage now utilised as a gym providing added practicality and versatility
Ground floor WC and first floor family bathroom with 3-piece suite
Gas central heating and double glazing
Off-road parking to the right-hand side of the property
Approx. 35' max. rear garden with lawn and raised decking seating area
*DRAFT DETAILS AWAITING APPROVAL*
SUMMARY
Step into this well-presented detached family home and you’re greeted by a welcoming entrance hall with a downstairs WC. To your left, the modern kitchen/diner features sleek cabinetry, integrated appliances and space for dining - perfect for everyday living.
Straight ahead, the central lounge forms the heart of the home, offering a comfortable space for relaxation. Beyond the lounge, the bright conservatory is flooded with natural light and ideal for use as an additional family area, dining room or home office.
To the first floor, the main bedroom enjoys its own en-suite shower room, while 2 further bedrooms offer excellent flexibility for family, guests or study use. The family bathroom serves all rooms from the landing.
A converted loft room provides a fantastic dressing area or additional storage space - a hidden gem for those needing more room, while the converted garage is currently used as a fully usable gym. This is a well-balanced home offering style, space and practicality in a sought-after village location.
OUTSIDE
Positioned on a generous corner plot, this attractive detached home enjoys a prime spot within a popular location. The property is fronted by an area of grass with a driveway to the right-hand side providing off-road parking.
To the rear, the property boasts an approx. 35' max. enclosed garden, featuring a raised decking area, lawn and shingle area, all bordered by mature shrubs and enclosed with fencing and brick walling. French and sliding doors provide access from both the conservatory and converted garage, with a further side gate allowing easy external access from the front.
LOCATION
Located just six miles southwest of Norwich, Hethersett is a thriving and well-connected village offering an excellent blend of rural charm and modern convenience. With a strong sense of community, the village features a range of local amenities including shops, cafés, healthcare services, and highly regarded schools. Surrounded by open countryside and green spaces, Hethersett is ideal for those seeking a peaceful lifestyle while remaining close to the city. Excellent transport links, including nearby access to the A11 and regular bus routes, make commuting to Norwich, Cambridge, or beyond straightforward. Popular with families and professionals alike, Hethersett continues to grow as a desirable and welcoming place to call home.
DIRECTIONS
From Norwich Road, B1172 running along the outskirts of the village, enter the Steepletower development via Churchfields. Follow the road round and turn right onto Birch Road, where the property can be found on the left-hand side on the corner.
LOCAL AUTHORITY
South Norfolk
COUNCIL TAX BAND
C
DISCLAIMER
While we have made diligent efforts to ensure the accuracy of the information relating to each property at the point of listing, you are advised to consult the official local council website for details on conservation areas, flood risks, tree preservation orders, planning applications, and other relevant aspects. These details are for guidance purposes only and we do not seek advice from the seller's legal representative in their preparation. We also strongly advise that you inspect the property and surrounding area on Google Maps and Street View prior to viewing. The photographs do not infer that items shown are included in the sale, the measurements quoted are approximate and the fixtures, fittings and appliances have not been tested, therefore no guarantee can be given that they are in working order. If there is any point which is of particular importance to you then please obtain professional confirmation of it.
GDPR
Should you wish to view one of our properties, we will require certain pieces of personal information from you in order to provide a professional service to you and our client, the seller. The personal information you provide to us will be shared with the seller, but it will not be shared with any other third parties without your consent.
Should you wish to proceed and make an offer on a property, some of the personal information you provide to us will be passed to the seller. Again, it will not be shared with any other third parties without your consent.
More information on how we hold and process your data is available upon request or on our website.
LETTINGS SERVICES
We offer a professional, ARLA accredited Lettings and Management Service via our affiliated agency, Habi Property. If you are considering renting your property in order to purchase, are looking at buy to let or would like a free, no obligation review of your current portfolio then please contact the office to discuss this further.
Detached home nestled on a sought‑after corner plot in the popular village of Hethersett
Designed with family living in mind, this home delivers flexible spaces perfect for working, relaxing and entertaining
Contemporary kitchen/diner with fitted units and integrated appliances
Spacious lounge leading into a bright conservatory - a fantastic extra reception space
3 good-sized first floor bedrooms including an en-suite to the main bedroom, plus loft room
Converted garage now utilised as a gym providing added practicality and versatility
Ground floor WC and first floor family bathroom with 3-piece suite
Gas central heating and double glazing
Off-road parking to the right-hand side of the property
Approx. 35' max. rear garden with lawn and raised decking seating area
Broadband
Download
Upload
Basic
18Mb/s
1Mb/s
SuperFast
80Mb/s
20Mb/s
UltraFast
10000Mb/s
10000Mb/s
Broadband & mobile data availability at 1, BIRCH ROAD NR93QH Address shown above is the closest found to the postcode, that has Ofcom data available.