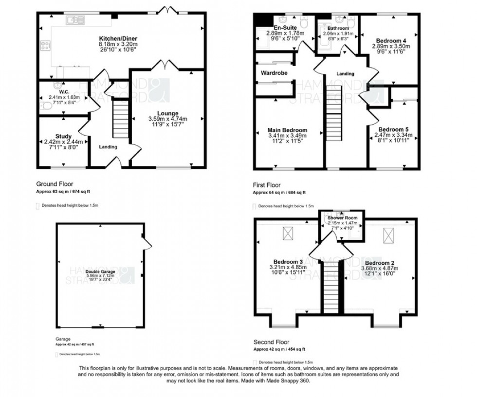
Set across 3 floors, this immaculately presented detached home is designed for versatile family living. Step into the entrance hall where a welcoming flow draws you into the heart of the home. To the right, the generous lounge is inviting, with doors that open into the kitchen/diner - creating an...
Substantial family residence situated on a private road within a modern sought-after development
Benefit from the remaining NHBC warranty - buy with confidence
Immaculately presented accommodation arranged over 3 floors - spacious, flexible and ideal for growing families
Generous kitchen/diner with French doors to rear garden, perfect for day‑to‑day living and entertaining
Separate lounge offering a relaxing reception space, plus a handy study - great for remote work
5 good-sized bedrooms over the top 2 floors including an impressive main bedroom with walk-in wardrobe and en-suite
Ground floor WC/utility, first floor family bathroom and second floor shower room
Gas central heating, double glazing, off-road parking, double garage and EV charging point
35' max. rear garden with patio, lawn and raised deck - ideal for summer dining, play or relaxing outdoors
SUMMARY
Set across 3 floors, this immaculately presented detached home is designed for versatile family living. Step into the entrance hall where a welcoming flow draws you into the heart of the home. To the right, the generous lounge is inviting, with doors that open into the kitchen/diner - creating an ideal layout for entertaining or everyday life. The kitchen enjoys integrated appliances an doors opening onto the patio. A separate utility/WC add practicality, while an adjacent study offers the perfect space for remote working.
On the first floor, a landing leads to the main bedroom - a generously sized retreat complete with a walk in wardrobe and an en-suite. 2 further bedrooms are on this floor, served by a modern family bathroom. The second floor completes the layout with a shower room and 2 additional bedrooms - offering excellent privacy and versatility.
With a total of over 1,800 sq/ft. of well-configured accommodation, this is a truly adaptable home ready to meet the needs of growing or multi-generational families.
OUTSIDE
Positioned on a private road of just a handful of similar homes, this property enjoys an attractive setting with a pleasant green space directly opposite. A driveway provides off-road parking in front of the double garage, which features 2 manual up-and-over doors, lighting, power and a personnel door to the garden. There’s also an EV charging point, adding convenience for modern living.
The approx. 35' max. rear garden has been thoughtfully arranged for both relaxation and entertaining. French doors from the kitchen/diner lead out to a large patio, perfect for al fresco dining. Beyond lies a neat lawn bordered by fencing, with a raised wooden deck tucked into the corner - ideal for evening drinks, outdoor lounging or a hot tub.
LOCATION
Located just six miles southwest of Norwich, Hethersett is a thriving and well-connected village offering an excellent blend of rural charm and modern convenience. With a strong sense of community, the village features a range of local amenities including shops, cafés, healthcare services, and highly regarded schools. Surrounded by open countryside and green spaces, Hethersett is ideal for those seeking a peaceful lifestyle while remaining close to the city. Excellent transport links, including nearby access to the A11 and regular bus routes, make commuting to Norwich, Cambridge, or beyond straightforward. Popular with families and professionals alike, Hethersett continues to grow as a desirable and welcoming place to call home.
DIRECTIONS
From Colney Lane turn onto Harness Maker Way and enter the Heather Gardens development. Turn left onto Coachmaker Way and take the second right onto Saddler Grove where the property can be found on the right-hand side.
AGENTS NOTE
A service charge of approx. £145 per annum applies however, we are currently awaiting documents to confirm these details.
LOCAL AUTHORITY
South Norfolk
COUNCIL TAX BAND
E
DISCLAIMER
While we have made diligent efforts to ensure the accuracy of the information relating to each property at the point of listing, you are advised to consult the official local council website for details on conservation areas, flood risks, tree preservation orders, planning applications, and other relevant aspects. These details are for guidance purposes only and we do not seek advice from the seller's legal representative in their preparation. We also strongly advise that you inspect the property and surrounding area on Google Maps and Street View prior to viewing. The photographs do not infer that items shown are included in the sale, the measurements quoted are approximate and the fixtures, fittings and appliances have not been tested, therefore no guarantee can be given that they are in working order. If there is any point which is of particular importance to you then please obtain professional confirmation of it.
GDPR
Should you wish to view one of our properties, we will require certain pieces of personal information from you in order to provide a professional service to you and our client, the seller. The personal information you provide to us will be shared with the seller, but it will not be shared with any other third parties without your consent.
Should you wish to proceed and make an offer on a property, some of the personal information you provide to us will be passed to the seller. Again, it will not be shared with any other third parties without your consent.
More information on how we hold and process your data is available upon request or on our website.
LETTINGS SERVICES
We offer a professional, ARLA accredited Lettings and Management Service via our affiliated agency, Habi Property. If you are considering renting your property in order to purchase, are looking at buy to let or would like a free, no obligation review of your current portfolio then please contact the office to discuss this further.
Guide Price £500,000 - £515,000
Substantial family residence situated on a private road within a modern sought-after development
Benefit from the remaining NHBC warranty - buy with confidence
Immaculately presented accommodation arranged over 3 floors - spacious, flexible and ideal for growing families
Generous kitchen/diner with French doors to rear garden, perfect for day‑to‑day living and entertaining
Separate lounge offering a relaxing reception space, plus a handy study - great for remote work
5 good-sized bedrooms over the top 2 floors including an impressive main bedroom with walk-in wardrobe and en-suite
Ground floor WC/utility, first floor family bathroom and second floor shower room
Gas central heating, double glazing, off-road parking, double garage and EV charging point
35' max. rear garden with patio, lawn and raised deck - ideal for summer dining, play or relaxing outdoors
Broadband
Download
Upload
Basic
11Mb/s
1Mb/s
SuperFast
54Mb/s
10Mb/s
UltraFast
1800Mb/s
900Mb/s
Broadband & mobile data availability at 13, SADDLER GROVE NR93GH Address shown above is the closest found to the postcode, that has Ofcom data available.