*DRAFT DETAILS AWAITING APPROVAL*
SUMMARY
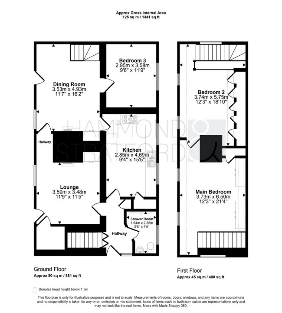
Step inside this characterful thatched cottage and you'll immediately notice the charm and potential on offer. The entrance hall leads to a cosy lounge with a feature fireplace and exposed beams, flowing into a spacious dining room ideal for...
Enchanting thatched cottage brimming with character of part-period construction, set on approx. 0.3 acre plot (STMS)
Offered with No Onward Chain!
3 bedrooms over 2 floors, including 2 first floor bedrooms accessed via separate staircases with an interlinking door
Cosy lounge enjoying exposed beams and a charming open fireplace - the perfect country retreat feel
Dining room with character features and flexibility for formal or relaxed living
15'5 kitchen with twin windows and walk-in pantry - full of charm and ready for modernisation
Ground floor family shower room with fitted storage and neutral tiling
Driveway providing off-road parking, sweeping around to the rear garden
Feature pond nestled in the front garden, framed by a lawn, adding tranquillity and wildlife appeal
Open lawn gardens to the rear with patio area - a blank canvas for landscaping or expansion
*DRAFT DETAILS AWAITING APPROVAL*
SUMMARY
Step inside this characterful thatched cottage and you'll immediately notice the charm and potential on offer. The entrance hall leads to a cosy lounge with a feature fireplace and exposed beams, flowing into a spacious dining room ideal for entertaining or family meals. A 15'5 kitchen with twin windows and a walk-in pantry sits at the heart of the home, offering great potential for modernisation and reconfiguration to suit your style. The ground floor also hosts a family shower room off the hallway and bedroom 3 to the rear.
Upstairs, 2 double bedrooms sit at either end of the property, each accessed via separate staircases, with an internal connecting door between. The home is dotted with quirky period details and provides a unique opportunity to create a truly bespoke countryside retreat.
OUTSIDE
Occupying an enviable rural position, this unique thatched cottage enjoys a wonderful open aspect, framed by adjacent fields. Sitting centrally within an approx. 0.3 acre plot, the setting offers a rare sense of space and seclusion. To the front, a feature pond is framed by a lawn and mature trees, with a brick wall separating the garden from the road. A utility pole is located within the front boundary.
A wide driveway sweeps from the front to the rear, providing ample off-road parking for multiple vehicles. The rear garden is predominantly laid to lawn with a patio seating area and enjoys open views over farmland, bordered by a ditch - a fantastic space with huge scope for landscaping or creating your dream outdoor retreat.
LOCATION
Saham Toney is a peaceful and well-connected village in the heart of Norfolk, offering a wonderful blend of rural charm and modern convenience. Just over a mile from the market town of Watton, residents enjoy access to supermarkets, schools, and independent shops, while returning home to a quieter, countryside setting. The village itself boasts a picturesque duck pond, a welcoming pub, and scenic walking routes through open farmland. With easy access to the A1075 and close proximity to Thetford Forest, Saham Toney is ideal for those seeking a balanced lifestyle—close to nature but within easy reach of key Norfolk towns and transport links.
AGENTS NOTE
Image showing boundary lines for guidance purposes only. Please refer to the title plan for a more accurate view of the boundaries. Please be advised that some of the images are computer generated, used to enhance the image providing a summer setting.
DIRECTIONS
From the traffic lights and crossroads adjacent to the Tesco Superstore in Watton, take Dereham Road A1075 heading north. Follow the road before turning left onto Saham Road, which becomes Ovington Road. Turn right onto Chequers Lane and follow the road round as it becomes Pages Lane, the property can be found on the right-hand side.
LOCAL AUTHORITY
Breckland
COUNCIL TAX BAND
D
DISCLAIMER
While we have made diligent efforts to ensure the accuracy of the information relating to each property at the point of listing, you are advised to consult the official local council website for details on conservation areas, flood risks, tree preservation orders, planning applications, and other relevant aspects. These details are for guidance purposes only and we do not seek advice from the seller's legal representative in their preparation. We also strongly advise that you inspect the property and surrounding area on Google Maps and Street View prior to viewing. The photographs do not infer that items shown are included in the sale, the measurements quoted are approximate and the fixtures, fittings and appliances have not been tested, therefore no guarantee can be given that they are in working order. If there is any point which is of particular importance to you then please obtain professional confirmation of it.
GDPR
Should you wish to view one of our properties, we will require certain pieces of personal information from you in order to provide a professional service to you and our client, the seller. The personal information you provide to us will be shared with the seller, but it will not be shared with any other third parties without your consent.
Should you wish to proceed and make an offer on a property, some of the personal information you provide to us will be passed to the seller. Again, it will not be shared with any other third parties without your consent.
More information on how we hold and process your data is available upon request or on our website.
LETTINGS SERVICES
We offer a professional, ARLA accredited Lettings and Management Service via our affiliated agency, Habi Property. If you are considering renting your property in order to purchase, are looking at buy to let or would like a free, no obligation review of your current portfolio then please contact the office to discuss this further.
Enchanting thatched cottage brimming with character of part-period construction, set on approx. 0.3 acre plot (STMS)
Offered with No Onward Chain!
3 bedrooms over 2 floors, including 2 first floor bedrooms accessed via separate staircases with an interlinking door
Cosy lounge enjoying exposed beams and a charming open fireplace - the perfect country retreat feel
Dining room with character features and flexibility for formal or relaxed living
15'5 kitchen with twin windows and walk-in pantry - full of charm and ready for modernisation
Ground floor family shower room with fitted storage and neutral tiling
Driveway providing off-road parking, sweeping around to the rear garden
Feature pond nestled in the front garden, framed by a lawn, adding tranquillity and wildlife appeal
Open lawn gardens to the rear with patio area - a blank canvas for landscaping or expansion
Broadband
Download
Upload
Basic
7Mb/s
1Mb/s
SuperFast
58Mb/s
12Mb/s
UltraFast
1800Mb/s
220Mb/s
Broadband & mobile data availability at Address shown above is the closest found to the postcode, that has Ofcom data available.