This thoughtfully and creatively refurbished semi-detached home has been transformed into a sophisticated yet homely residence, blending timeless architecture with contemporary design.
At the heart of the property lies the breath taking open plan kitchen and dining area - a truly impressive...
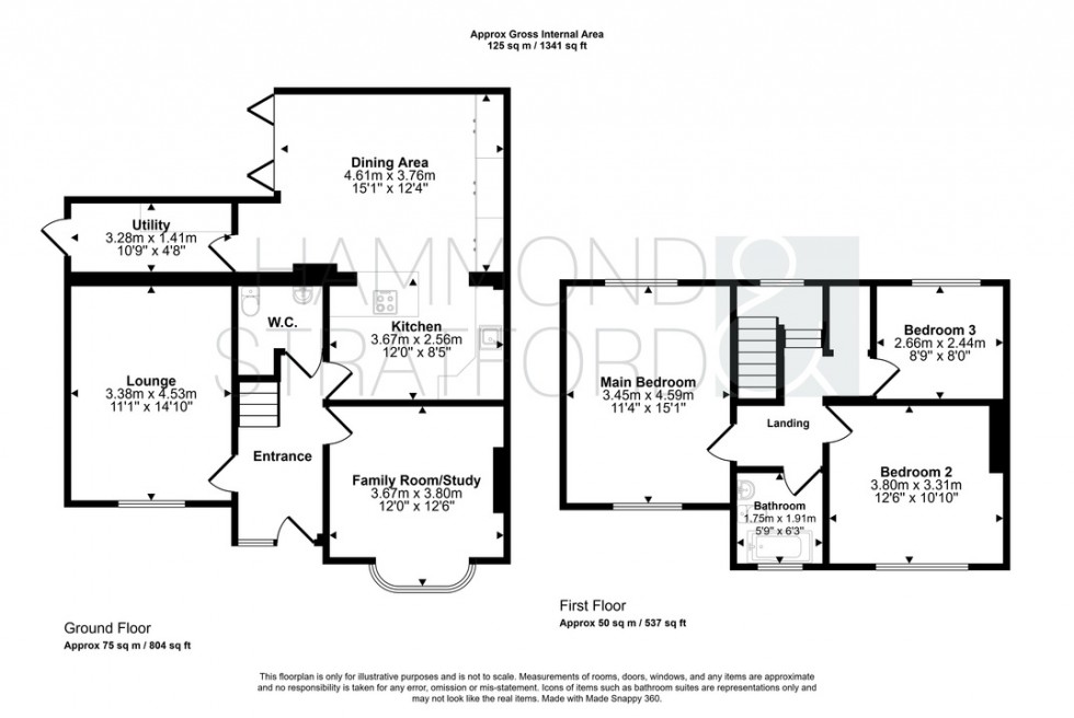
Refurbished family home offering over 1,300sq/ft. of immaculate accommodation - the epitome of luxury and comfort
Enjoying close proximity to the vibrant Golden Triangle and offered with No Onward Chain
Spectacular open plan kitchen/dining space with island, integrated appliances, wine cooler and bifold doors
Elegant lounge with enviable herringbone flooring and refined décor - an ideal space for relaxing
Versatile family room/study - ideal for home working or additional reception space/ground floor bedroom
3 first floor bedrooms, including a substantial main bedroom with integrated wardrobes
Contemporary family bathroom with bath and overhead shower plus ground floor WC
Gas central heating and mostly double glazing
Off-road parking, EV charging point and south-east facing wraparound garden with lawn and patio seating area
Book your viewing today - this move-in ready property won’t be available for long!
SUMMARY
This thoughtfully refurbished home has been transformed into a sophisticated yet homely residence, blending timeless architecture with contemporary design.
At the heart of the property lies the stunning open plan kitchen and dining area - a truly impressive space. Featuring sleek cabinetry, integrated appliances, island seating, wine cooler and bifold doors that open seamlessly onto the patio, creating effortless indoor-outdoor living. A large roof lantern floods the space with natural light, enhancing the feeling of openness and luxury.
The spacious lounge provides a cosy yet refined retreat, complete with herringbone flooring and an elegant finish. A separate bay-fronted family room/study offers flexibility for modern life - perfect as a home office, playroom or snug.
Upstairs, 3 bedrooms are arranged off the landing. The main bedroom is particularly generous, complete with integrated wardrobes, while a beautifully appointed family bathroom serves the first floor, complemented by a ground floor WC.
Every detail has been carefully considered to create a harmonious blend of comfort, style and functionality.
OUTSIDE
To the front, a smart shingle driveway provides side-by-side off-road parking and benefits from an installed EV charging point. The frontage is neatly enclosed by brick walling creating a tidy and welcoming approach.
To the rear, the approx. 45' max. south-east facing garden wraps around the house, enhancing both light and privacy. Mainly laid to lawn with a patio area accessed via the bifold doors, it offers an excellent balance of entertaining space and family-friendly lawn. Fully enclosed and well proportioned, it creates a seamless extension of the impressive kitchen/dining area.
LOCATION
The NR4 area of Norwich is a highly desirable location, offering a blend of suburban calm and city convenience. Situated south-west of the city centre, it provides excellent access to the University of East Anglia, Norfolk and Norwich University Hospital, and Norwich Research Park. With strong public transport links and proximity to the A11, commuting is easy. The area boasts a range of amenities including shops, cafes, schools, and medical services. Nearby Eaton and Earlham Road offer local pubs and independent stores, while Eaton Park provides green space and leisure facilities, making NR4 ideal for families, professionals, and outdoor enthusiasts.
DIRECTIONS
Leave the centre of Norwich along Unthank Road, passing a variety of shops, pubs, bars and restaurants. Turn left onto Leopold Road where the property can be found on the right-hand side.
AGENTS NOTE
Please be advised we are yet to see documentation confirming that the extension complies to building regulations. Please be advised, there is ongoing development in the area.
LOCAL AUTHORITY
Norwich
COUNCIL TAX BAND
D
DISCLAIMER
While we have made diligent efforts to ensure the accuracy of the information relating to each property at the point of listing, you are advised to consult the official local council website for details on conservation areas, flood risks, tree preservation orders, planning applications, and other relevant aspects. These details are for guidance purposes only and we do not seek advice from the seller's legal representative in their preparation. We also strongly advise that you inspect the property and surrounding area on Google Maps and Street View prior to viewing. The photographs do not infer that items shown are included in the sale, the measurements quoted are approximate and the fixtures, fittings and appliances have not been tested, therefore no guarantee can be given that they are in working order. If there is any point which is of particular importance to you then please obtain professional confirmation of it.
GDPR
Should you wish to view one of our properties, we will require certain pieces of personal information from you in order to provide a professional service to you and our client, the seller. The personal information you provide to us will be shared with the seller, but it will not be shared with any other third parties without your consent.
Should you wish to proceed and make an offer on a property, some of the personal information you provide to us will be passed to the seller. Again, it will not be shared with any other third parties without your consent.
More information on how we hold and process your data is available upon request or on our website.
LETTINGS SERVICES
We offer a professional, ARLA accredited Lettings and Management Service via our affiliated agency, Habi Property. If you are considering renting your property in order to purchase, are looking at buy to let or would like a free, no obligation review of your current portfolio then please contact the office to discuss this further.
Refurbished family home offering over 1,300sq/ft. of immaculate accommodation - the epitome of luxury and comfort
Enjoying close proximity to the vibrant Golden Triangle and offered with No Onward Chain
Spectacular open plan kitchen/dining space with island, integrated appliances, wine cooler and bifold doors
Elegant lounge with enviable herringbone flooring and refined décor - an ideal space for relaxing
Versatile family room/study - ideal for home working or additional reception space/ground floor bedroom
3 first floor bedrooms, including a substantial main bedroom with integrated wardrobes
Contemporary family bathroom with bath and overhead shower plus ground floor WC
Gas central heating and mostly double glazing
Off-road parking, EV charging point and south-east facing wraparound garden with lawn and patio seating area
Book your viewing today - this move-in ready property won’t be available for long!
Broadband
Download
Upload
Basic
17Mb/s
1Mb/s
SuperFast
80Mb/s
20Mb/s
UltraFast
1800Mb/s
220Mb/s
Broadband & mobile data availability at 4, LEOPOLD ROAD NR47AD Address shown above is the closest found to the postcode, that has Ofcom data available.