Substantial detached residence on an approx. 0.16 acre plot (STMS), enjoying a sought-after position
Over 2,380 sq/ft. of versatile accommodation, with clear scope for reconfiguration
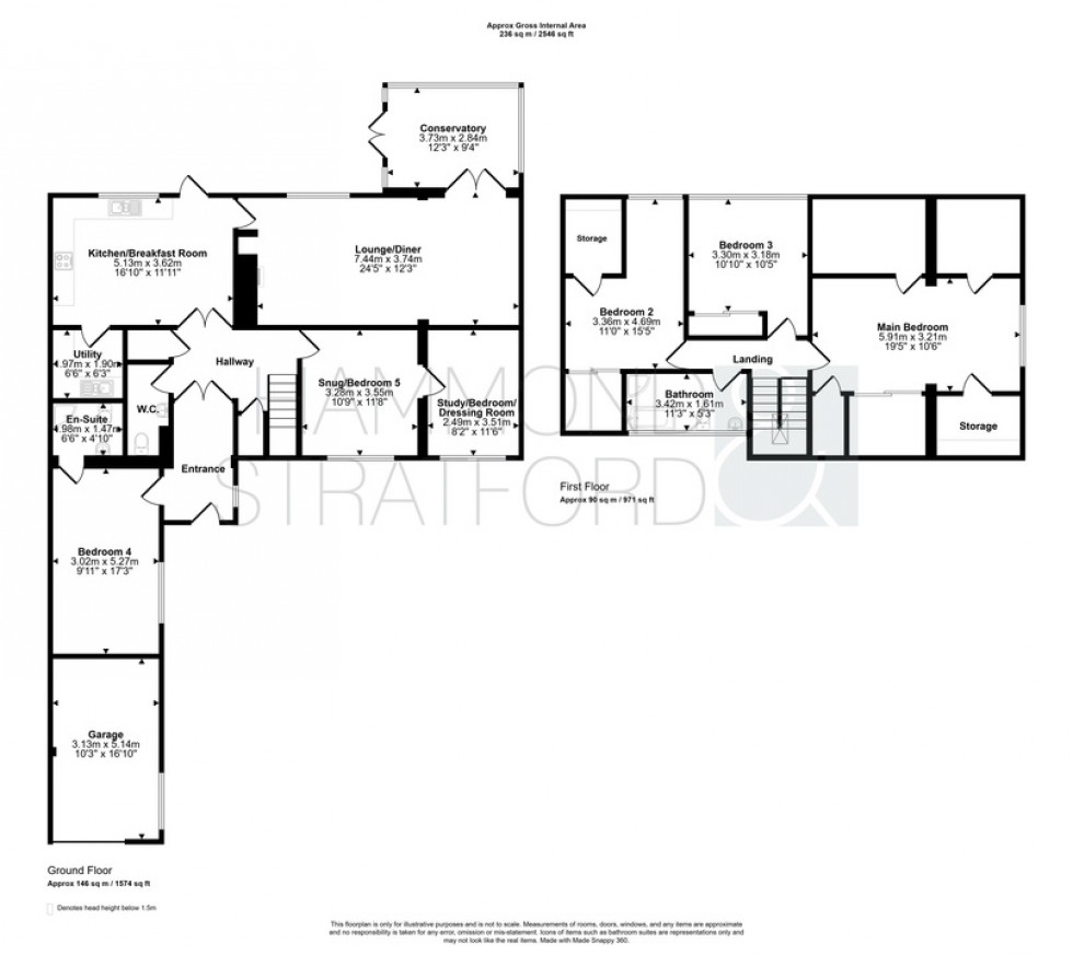
Flexible bedroom layout, including 3 first floor bedrooms and up to 3 further ground floor bedroom options
Versatile ground floor reception rooms, ideal for home working, guests or multi-generational living
24' lounge/diner centred around a character fireplace and opening into the conservatory
Well-proportioned kitchen/breakfast room with fitted units and adjoining utility room
Ground floor en-suite to bedroom 4, separate WC and first floor family bathroom with both bath and shower
Gas central heating and double glazing
South-facing rear garden with a broad lawn and a wonderful open outlook to the woodland and golf course beyond
Single garage, private driveway parking and a great position within Eaton Rise
*DRAFT DETAILS AWAITING APPROVAL*
SUMMARY
A welcoming entrance hall provides access to the main living areas. To the rear, the impressive lounge/diner is centred around a character fireplace and opens into the conservatory. The kitchen/breakfast room offers ample space for everyday family living and connects to a utility room.
The ground floor layout is versatile, offering a snug/bedroom 5 and a further study or dressing room which could easily form part of a larger bedroom suite or additional reception space. Bedroom 4 sits to the front of the house with the benefit of its own en-suite, making it ideal for guests, multi-generational living or independent accommodation.
Upstairs, the landing leads to the 3 bedrooms, including an impressive main bedroom with extensive fitted storage. A large family bathroom serves the remaining rooms and includes both a bath and separate shower. Altogether, the property offers clear scope for modernisation or reconfiguration (STPP), creating an exciting opportunity to shape a truly exceptional long-term family home.
OUTSIDE
Occupying a position towards the end of Constable Road, the property enjoys an enviable setting within the highly regarded Eaton Rise area. The home sits on a generous south-facing plot of approx. 0.16 acres and benefits from a wonderful outlook. To the front, the property is set back from the road behind a lawned garden framed by mature trees, featuring a driveway providing off-road parking and leading to the single garage.
The rear garden enjoys a sunny south-facing orientation and is laid predominantly to lawn, offering excellent space for family use, entertaining or future landscaping, with mature trees, shrubs and planting adding character throughout. The plot backs onto the green outlook of Eaton Golf Course and the natural woodland of Danby Woods, creating a beautiful backdrop that is rarely found so close to the city.
LOCATION
Eaton Rise is a sought-after residential enclave nestled between Eaton and the Golden Triangle, just 1.5 miles from Norwich city centre. Known for its tree-lined streets and spacious mid-century homes, it offers a peaceful and well-connected setting popular with families and professionals alike. Residents enjoy close proximity to Eaton’s village centre amenities—including shops, a Waitrose, and cafés—while also benefitting from nearby schools, bus links, and Eaton Park. The area has a strong community feel and a reputation for quality housing in a prime south-west Norwich location.
DIRECTIONS
Head out of Norwich on Ipswich Road, passing City College Norwich on the left-hand side. Head over the traffic lights and continue before turning right onto Broadhurst Road then immediately left onto Constable Road. Follow the road round where the property can be found, set back from the road, on the left-hand side.
AGENTS NOTE
Please be advised that there is a Tree Preservation Order at the property (TPO 537), [Oak tree to the rear].
LOCAL AUTHORITY
Norwich
COUNCIL TAX BAND
E
DISCLAIMER
While we have made diligent efforts to ensure the accuracy of the information relating to each property at the point of listing, you are advised to consult the official local council website for details on conservation areas, flood risks, tree preservation orders, planning applications, and other relevant aspects. These details are for guidance purposes only and we do not seek advice from the seller's legal representative in their preparation. We also strongly advise that you inspect the property and surrounding area on Google Maps and Street View prior to viewing. The photographs do not infer that items shown are included in the sale, the measurements quoted are approximate and the fixtures, fittings and appliances have not been tested, therefore no guarantee can be given that they are in working order. If there is any point which is of particular importance to you then please obtain professional confirmation of it.
GDPR
Should you wish to view one of our properties, we will require certain pieces of personal information from you in order to provide a professional service to you and our client, the seller. The personal information you provide to us will be shared with the seller, but it will not be shared with any other third parties without your consent.
Should you wish to proceed and make an offer on a property, some of the personal information you provide to us will be passed to the seller. Again, it will not be shared with any other third parties without your consent.
More information on how we hold and process your data is available upon request or on our website.
LETTINGS SERVICES
We offer a professional, ARLA accredited Lettings and Management Service via our affiliated agency, Habi Property. If you are considering renting your property in order to purchase, are looking at buy to let or would like a free, no obligation review of your current portfolio then please contact the office to discuss this further.
Substantial detached residence on an approx. 0.16 acre plot (STMS), enjoying a sought-after position
Over 2,380 sq/ft. of versatile accommodation, with clear scope for reconfiguration
Flexible bedroom layout, including 3 first floor bedrooms and up to 3 further ground floor bedroom options
Versatile ground floor reception rooms, ideal for home working, guests or multi-generational living
24' lounge/diner centred around a character fireplace and opening into the conservatory
Well-proportioned kitchen/breakfast room with fitted units and adjoining utility room
Ground floor en-suite to bedroom 4, separate WC and first floor family bathroom with both bath and shower
Gas central heating and double glazing
South-facing rear garden with a broad lawn and a wonderful open outlook to the woodland and golf course beyond
Single garage, private driveway parking and a great position within Eaton Rise
Broadband
Download
Upload
Basic
6Mb/s
0.7Mb/s
SuperFast
75Mb/s
20Mb/s
UltraFast
1800Mb/s
220Mb/s
Broadband & mobile data availability at 19, CONSTABLE ROAD NR46RW Address shown above is the closest found to the postcode, that has Ofcom data available.