Modern detached home with builders warranty remaining - offering peace of mind
Positioned on an enviable plot at the edge of a modern development with open field views
Beautifully presented throughout - with tasteful décor and a turnkey finish ready for immediate occupation
Generous front-facing lounge enhanced by a striking woodburner, creating a cosy and inviting focal point
Contemporary kitchen diner fitted with integrated oven, hob, extractor, dishwasher and fridge freezer, plus French doors opening to the garden
3 first floor bedrooms, with the main bedroom benefiting from integrated wardrobes and an en-suite shower room
Ground floor utility and WC, plus a first floor stylish family bathroom with 3-piece suite
Gas central heating and double glazing
Tandem off-road parking, EV charging point and mostly insulated garage with electric door, light and power
Fully enclosed rear garden with lawn and patio area, ideal for outdoor dining and relaxation
*DRAFT DETAILS AWAITING APPROVAL*
SUMMARY
Beautifully presented throughout and ready to move straight into, this home offers an excellent opportunity for buyers looking for a smooth and swift move.
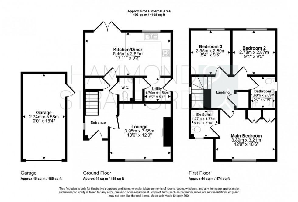
Stepping inside, a welcoming entrance hall provides access to the ground floor accommodation, including a convenient WC. To the front of the property, the spacious lounge offers a wonderfully cosy setting, centred around a striking woodburner that creates the perfect space to relax and unwind. To the rear, the contemporary kitchen/diner forms the heart of the home, fitted with modern units and integrated appliances, plus an adjacent utility - ideal for everyday living and entertaining.
Upstairs, the landing leads to 3 well-proportioned bedrooms, including a generous main bedroom with integrated wardrobes and a stylish en-suite shower room, alongside a modern family bathroom. This is a fantastic opportunity to secure a modern, low maintenance home in a desirable village setting with open views and excellent connectivity.
OUTSIDE
To the front, the property enjoys a pleasant position with open field views nearby and a brick weave driveway running along the left-hand side of the home. The driveway provides tandem off-road parking and benefits from the convenience of an installed EV charging point. This leads to the single garage, fitted with an electric sectional door operated by key fob, with light and power connected. The garage has also been mostly insulated, making it a versatile space for storage, hobbies or a workshop and includes a personnel door providing access to the rear garden.
The approx. 24' max. rear garden is fully enclosed and designed for ease of maintenance, mainly laid to lawn with a patio area directly outside the kitchen diner - perfect for outdoor dining and entertaining.
LOCATION
Located just six miles southwest of Norwich, Hethersett is a thriving and well-connected village offering an excellent blend of rural charm and modern convenience. With a strong sense of community, the village features a range of local amenities including shops, cafés, healthcare services, and highly regarded schools. Surrounded by open countryside and green spaces, Hethersett is ideal for those seeking a peaceful lifestyle while remaining close to the city. Excellent transport links, including nearby access to the A11 and regular bus routes, make commuting to Norwich, Cambridge, or beyond straightforward. Popular with families and professionals alike, Hethersett continues to grow as a desirable and welcoming place to call home.
DIRECTIONS
From the B1172 turn onto Colney Lane then turn left onto Harness Maker Way and enter the Heather Gardens development. Turn right onto Burnthouse Lane where the property can be found towards the end on the left-hand side.
AGENTS NOTE
Annual service charges of approx. £185 apply, however we are awaiting documents to confirm this.
LOCAL AUTHORITY
South Norfolk
COUNCIL TAX BAND
D
DISCLAIMER
While we have made diligent efforts to ensure the accuracy of the information relating to each property at the point of listing, you are advised to consult the official local council website for details on conservation areas, flood risks, tree preservation orders, planning applications, and other relevant aspects. These details are for guidance purposes only and we do not seek advice from the seller's legal representative in their preparation. We also strongly advise that you inspect the property and surrounding area on Google Maps and Street View prior to viewing. The photographs do not infer that items shown are included in the sale, the measurements quoted are approximate and the fixtures, fittings and appliances have not been tested, therefore no guarantee can be given that they are in working order. If there is any point which is of particular importance to you then please obtain professional confirmation of it.
GDPR
Should you wish to view one of our properties, we will require certain pieces of personal information from you in order to provide a professional service to you and our client, the seller. The personal information you provide to us will be shared with the seller, but it will not be shared with any other third parties without your consent.
Should you wish to proceed and make an offer on a property, some of the personal information you provide to us will be passed to the seller. Again, it will not be shared with any other third parties without your consent.
More information on how we hold and process your data is available upon request or on our website.
LETTINGS SERVICES
We offer a professional, ARLA accredited Lettings and Management Service via our affiliated agency, Habi Property. If you are considering renting your property in order to purchase, are looking at buy to let or would like a free, no obligation review of your current portfolio then please contact the office to discuss this further.
Modern detached home with builders warranty remaining - offering peace of mind
Positioned on an enviable plot at the edge of a modern development with open field views
Beautifully presented throughout - with tasteful décor and a turnkey finish ready for immediate occupation
Generous front-facing lounge enhanced by a striking woodburner, creating a cosy and inviting focal point
Contemporary kitchen diner fitted with integrated oven, hob, extractor, dishwasher and fridge freezer, plus French doors opening to the garden
3 first floor bedrooms, with the main bedroom benefiting from integrated wardrobes and an en-suite shower room
Ground floor utility and WC, plus a first floor stylish family bathroom with 3-piece suite
Gas central heating and double glazing
Tandem off-road parking, EV charging point and mostly insulated garage with electric door, light and power
Fully enclosed rear garden with lawn and patio area, ideal for outdoor dining and relaxation
Broadband
Download
Upload
Basic
12Mb/s
1Mb/s
SuperFast
Not Available
Not Available
UltraFast
1800Mb/s
900Mb/s
Broadband & mobile data availability at 31, BURNTHOUSE LANE NR93GU Address shown above is the closest found to the postcode, that has Ofcom data available.