SUMMARY
This unique Grade II listed home provides a spacious and highly versatile 4/5 bedroom residence. Entering the home, the ground floor immediately showcases its flexibility, with a bedroom 5 or study alongside a shower room, ideal for guests or multigenerational living.
The living...
Remarkably versatile period home with 2 additional 2 bedroom cottages included in the sale
Grade II listed main house, formerly 2 houses and now arranged as a spacious 4/5 bedroom home
Beautifully characterful throughout with exposed beams, fireplaces and a wealth of period charm
The 2 cottages are ideal for multigenerational living, guest accommodation or holiday lets
Impressive plot of around 0.16 acres (STMS), combining outdoor space with versatility
4 bedrooms in the main house, including 2 with en-suites, plus a ground floor bedroom 5/study with a shower room
Impressive triple aspect lounge with 2 sets of double doors, plus a separate sitting room/snug
Charming kitchen/diner with an enviable range-style cooker, an adjoining utility room and garden room
Private driveway with off-road parking and garage with versatile loft conversion/studio above
Beautiful cottage-style garden with established planting, patio seating areas and a high degree of privacy
SUMMARY
This unique Grade II listed home provides a spacious and highly versatile 4/5 bedroom residence. Entering the home, the ground floor immediately showcases its flexibility, with a bedroom 5 or study alongside a shower room, ideal for guests or multigenerational living.
The living spaces are both characterful and inviting, with an impressive triple aspect lounge featuring 2 sets of double doors opening onto the garden. A separate sitting room/snug offers a cosy retreat, while the charming kitchen/diner provides an excellent space for dining and entertaining. This leads through to a utility room and garden room, providing additional reception space and step-free, wheelchair-friendly access via the garden room. Upstairs, there are 4 well-proportioned bedrooms, 2 with en-suites, 3 with storage, plus a family bathroom enhancing practicality.
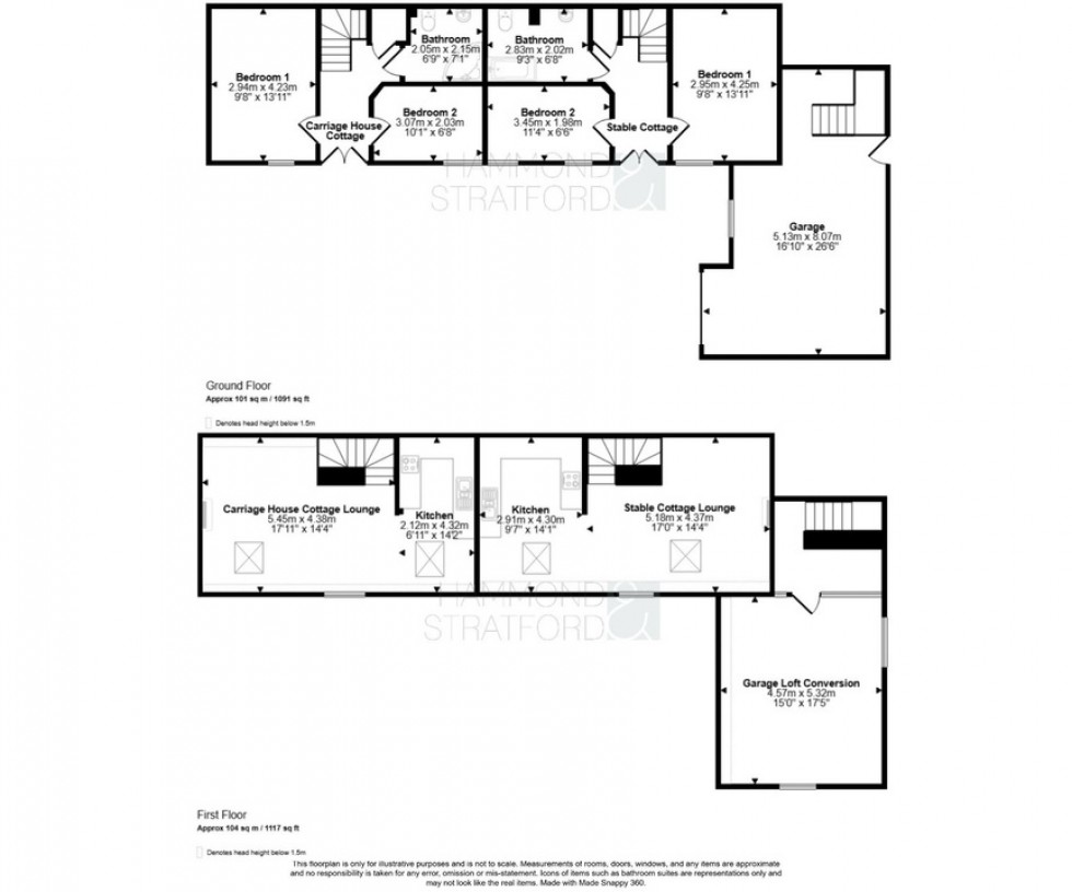
Beyond the main house, the property’s appeal is further elevated by the inclusion of 2 additional cottages. Each is arranged with living area and kitchen to the first floor and 2 bedrooms with a bathroom on the ground floor. These cottages have EPC ratings of C and D and offer exceptional flexibility, whether used for holiday lets, long-term rental income, guest accommodation or independent living.
Altogether, this is a rare opportunity to acquire a characterful home with genuine versatility and income potential, all set within a generous plot in the heart of Hingham.
OUTSIDE
Enjoying a popular location the property occupies a generous plot of approx. 0.16 acres (STMS), fronting onto the road. Access is provided via a gated driveway running to the side of the house, leading through to the rear of the plot. To the rear the driveway provides off-road parking leading to the garage which benefits from power and lighting, along with a useful loft conversion above, offering excellent potential as a studio or workspace.
The garden is arranged in a charming cottage style with a series of patio seating areas, pathways and well-stocked planting beds. Mature trees, shrubs and decorative features create a private and established setting, ideal for relaxing or entertaining. The garden also offers wheelchair-friendly access directly into the property via the garden room, complementing the step-free ground floor accommodation.
The 2 cottages each enjoy their own defined outdoor space to the front, with sectioned patio areas creating seating spots ideal for relaxing. These low maintenance areas provide a pleasant separation between each cottage while still feeling connected to the overall setting, perfectly suited for guest use or holiday let appeal.
LOCATION
Nestled amid the serene landscapes of Norfolk, Hingham embodies the quintessential charm of a historic market town. Just 17 miles west of Norwich, it offers a tranquil escape while maintaining convenient access to the bustling city. In Hingham, a tapestry of historic architecture adorns its streets, complemented by a vibrant community and an array of modern amenities. The town's heart beats in its bustling marketplace, where traditional buildings stand alongside quaint cafes, an inviting pub and essential services like the Co-op, butchers, bakers, village hall, sports centre and chemist. The town also features a Primary School and a doctor's surgery that has been voted within the top 10 surgeries in England! Whether savouring a locally brewed pint or indulging in freshly baked goods, visitors find themselves immersed in the town's rich tapestry of flavours and experiences. With its blend of history, amenities and proximity to Norwich, Wymondham, Attleborough and Dereham, Hingham presents an enchanting destination.
AGENTS NOTE
Please be advised the 2 cottages are currently tenanted.
DIRECTIONS
Head through the town of Hingham on Church Street and turn right at the crossroads onto Dereham Road. Follow the road round where the property can be found on the left-hand side fronting onto the main road.
LOCAL AUTHORITY
South Norfolk
COUNCIL TAX BAND
Main House E, Carriage House Cottage & Stable Cottage B
DISCLAIMER
While we have made diligent efforts to ensure the accuracy of the information relating to each property at the point of listing, you are advised to consult the official local council website for details on conservation areas, flood risks, tree preservation orders, planning applications, and other relevant aspects. These details are for guidance purposes only and we do not seek advice from the seller's legal representative in their preparation. We also strongly advise that you inspect the property and surrounding area on Google Maps and Street View prior to viewing. The photographs do not infer that items shown are included in the sale, the measurements quoted are approximate and the fixtures, fittings and appliances have not been tested, therefore no guarantee can be given that they are in working order. If there is any point which is of particular importance to you then please obtain professional confirmation of it.
GDPR
Should you wish to view one of our properties, we will require certain pieces of personal information from you in order to provide a professional service to you and our client, the seller. The personal information you provide to us will be shared with the seller, but it will not be shared with any other third parties without your consent.
Should you wish to proceed and make an offer on a property, some of the personal information you provide to us will be passed to the seller. Again, it will not be shared with any other third parties without your consent.
More information on how we hold and process your data is available upon request or on our website.
LETTINGS SERVICES
We offer a professional, ARLA accredited Lettings and Management Service via our affiliated agency, Habi Property. If you are considering renting your property in order to purchase, are looking at buy to let or would like a free, no obligation review of your current portfolio then please contact the office to discuss this further.
Remarkably versatile period home with 2 additional 2 bedroom cottages included in the sale
Grade II listed main house, formerly 2 houses and now arranged as a spacious 4/5 bedroom home
Beautifully characterful throughout with exposed beams, fireplaces and a wealth of period charm
The 2 cottages are ideal for multigenerational living, guest accommodation or holiday lets
Impressive plot of around 0.16 acres (STMS), combining outdoor space with versatility
4 bedrooms in the main house, including 2 with en-suites, plus a ground floor bedroom 5/study with a shower room
Impressive triple aspect lounge with 2 sets of double doors, plus a separate sitting room/snug
Charming kitchen/diner with an enviable range-style cooker, an adjoining utility room and garden room
Private driveway with off-road parking and garage with versatile loft conversion/studio above
Beautiful cottage-style garden with established planting, patio seating areas and a high degree of privacy
Broadband
Download
Upload
Basic
18Mb/s
1Mb/s
SuperFast
67Mb/s
15Mb/s
UltraFast
Not Available
Not Available
Broadband & mobile data availability at Address shown above is the closest found to the postcode, that has Ofcom data available.