A striking residence set on a generous and private plot within a highly sought-after location, offering over 2,500 sq/ft. of living space and exceptional potential!
Elegant Italianate designed home enjoying a plot approaching half an acre within a desirable area
A fantastic opportunity waits - an unfinished yet impressive home, offering the rare chance to complete this family home
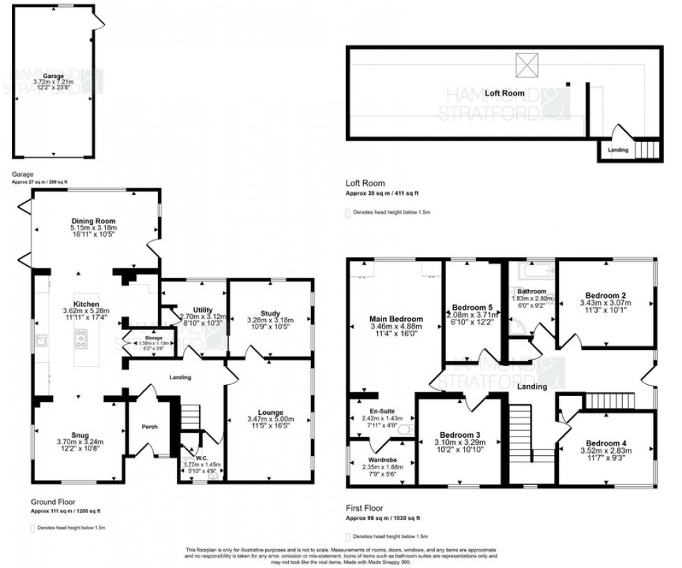
Grand kitchen featuring an island/breakfast bar, plus a walk-in pantry and integrated appliances
Enviable dining room off the kitchen boasting a striking roof lantern, with a separate cosy snug
Generous lounge featuring windows that flood the space with natural light, plus a separate study ideal for home working
5 impressive first floor bedrooms off the landing, including a walk-in wardrobe to the main bedroom
Ground floor WC, first floor family bathroom with a separate shower and en-suite to the main bedroom
Oil fired heating, underfloor heating to the kitchen, dining room and snug, plus updated double glazing
Extensive gated driveway with secure entry, providing off-road parking, plus gates through to the garage
Beautifully landscaped rear garden with patio seating area with a nature pond and steps up to the lawn
*DRAFT DETAILS AWAITING APPROVAL*
SUMMARY
A fantastic opportunity awaits with this striking detached residence, offering over 2,500 sq/ft of versatile accommodation. Currently requiring finishing, it presents a rare chance to create a perfect family home.
A fantastic opportunity awaits with this detached residence, offering over 2,500 sq/ft. of versatile accommodation. Currently requiring finishing, it presents a rare chance to create a bespoke family home. The ground floor is centred around an impressive kitchen with central island/breakfast bar, designed for everyday living and entertaining, flowing into a dining room with a roof lantern flooding the space with natural light. A cosy snug offers a quieter retreat, while a generous lounge and separate study provide excellent flexibility. A utility room and WC complete the downstairs.
Upstairs, there are 5 bedrooms, including a main suite with dressing area and en-suite, currently incomplete, allowing buyers to finish to their own style. The remaining bedrooms are served by a modern family bathroom with separate shower. The loft has also been prepared with Velux windows and was intended for conversion, offering further potential for additional accommodation (STPP). Overall, a substantial home with strong architectural character, offering a blank canvas to be completed to an exceptional standard.
OUTSIDE
Occupying a generous plot approaching half an acre (STMS), this tucked-away position offers both privacy and presence. Set behind electric gates, a sweeping driveway (requiring finishing) provides extensive off-road parking and access to a timber garage/barn. The front gardens create a strong first impression, with mature trees, planting and a nature pond.
To the rear, the garden is mainly laid to lawn and thoughtfully landscaped, featuring a variety of mature trees, shrubs and well-planned borders. A generous patio terrace spans the rear, ideal for outdoor dining and entertaining, with steps rising to the main lawn and a nature pond enhancing the setting. An oil tank is also located within the plot. Overall, the grounds are a standout feature - offering scale, maturity and excellent potential, perfectly complementing the home.
LOCATION
The NR4 area of Norwich is a highly desirable location, offering a blend of suburban calm and city convenience. Situated south-west of the city centre, it provides excellent access to the University of East Anglia, Norfolk and Norwich University Hospital, and Norwich Research Park. With strong public transport links and proximity to the A11, commuting is easy. The area boasts a range of amenities including shops, cafes, schools, and medical services. Nearby Eaton and Earlham Road offer local pubs and independent stores, while Eaton Park provides green space and leisure facilities, making NR4 ideal for families, professionals, and outdoor enthusiasts.
AGENTS NOTE
Please be advised that some of the images are computer generated to show the potential of this property. Please be advised we are yet to see building regulations for the extensions. The property is currently unfinished, please contact the office for more information.
SECTION 21 – CONNECTED PERSON
Please be advised the Seller is connected to an employee of Hammond & Stratford Estate Agents.
DIRECTIONS
From the crossroads and traffic lights in the centre of Eaton, take the turning for Bluebell Road and pass under the A11 flyover. The property can be found on the right-hand side opposite the retirement complex.
LOCAL AUTHORITY
Norwich
COUNCIL TAX BAND
F
DISCLAIMER
While we have made diligent efforts to ensure the accuracy of the information relating to each property at the point of listing, you are advised to consult the official local council website for details on conservation areas, flood risks, tree preservation orders, planning applications, and other relevant aspects. These details are for guidance purposes only and we do not seek advice from the seller's legal representative in their preparation. We also strongly advise that you inspect the property and surrounding area on Google Maps and Street View prior to viewing. The photographs do not infer that items shown are included in the sale, the measurements quoted are approximate and the fixtures, fittings and appliances have not been tested, therefore no guarantee can be given that they are in working order. If there is any point which is of particular importance to you then please obtain professional confirmation of it.
GDPR
Should you wish to view one of our properties, we will require certain pieces of personal information from you in order to provide a professional service to you and our client, the seller. The personal information you provide to us will be shared with the seller, but it will not be shared with any other third parties without your consent.
Should you wish to proceed and make an offer on a property, some of the personal information you provide to us will be passed to the seller. Again, it will not be shared with any other third parties without your consent.
More information on how we hold and process your data is available upon request or on our website.
LETTINGS SERVICES
We offer a professional, ARLA accredited Lettings and Management Service via our affiliated agency, Habi Property. If you are considering renting your property in order to purchase, are looking at buy to let or would like a free, no obligation review of your current portfolio then please contact the office to discuss this further.
Elegant Italianate designed home enjoying a plot approaching half an acre within a desirable area
A fantastic opportunity waits - an unfinished yet impressive home, offering the rare chance to complete this family home
Grand kitchen featuring an island/breakfast bar, plus a walk-in pantry and integrated appliances
Enviable dining room off the kitchen boasting a striking roof lantern, with a separate cosy snug
Generous lounge featuring windows that flood the space with natural light, plus a separate study ideal for home working
5 impressive first floor bedrooms off the landing, including a walk-in wardrobe to the main bedroom
Ground floor WC, first floor family bathroom with a separate shower and en-suite to the main bedroom
Oil fired heating, underfloor heating to the kitchen, dining room and snug, plus updated double glazing
Extensive gated driveway with secure entry, providing off-road parking, plus gates through to the garage
Beautifully landscaped rear garden with patio seating area with a nature pond and steps up to the lawn
Broadband
Download
Upload
Basic
15Mb/s
1Mb/s
SuperFast
80Mb/s
20Mb/s
UltraFast
1800Mb/s
220Mb/s
Broadband & mobile data availability at 26, BLUEBELL ROAD NR47LF Address shown above is the closest found to the postcode, that has Ofcom data available.