This remarkable detached residence offers an impressive blend of space, style and versatility, set within one of Norwich’s most coveted residential addresses.
Designed with family living in mind, the ground floor flows effortlessly between formal and informal spaces, including an elegant...
A rare opportunity to acquire a substantial family home in a highly desirable part of Norwich
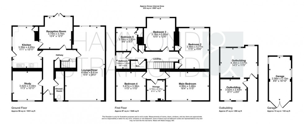
Generous reception spaces including an elegant lounge/diner and a dedicated study
Well-appointed kitchen complemented by an additional versatile reception room, ideal as a snug
5 good-sized first floor bedrooms and family bathroom, plus a ground floor shower room
Impressive sweeping driveway providing off-road parking for several vehicles and single garage
Generous front and rear gardens including an expansive lawn and patio seating area
Unique timber-framed outbuilding to the rear, previously used as a tack shed
Situated within a highly sought-after and convenient location, close to City of Norwich School
SUMMARY
This remarkable detached residence offers an impressive blend of space, style and versatility, set within one of Norwich’s most coveted residential addresses.
Designed with family living in mind, the ground floor flows effortlessly between formal and informal spaces, including an elegant lounge/diner with garden views, a separate study and a versatile 3rd reception room ideal as a home office or snug. The kitchen offers excellent scope for personalisation and is accompanied by a practical breakfast area and a convenient ground floor shower room.
Upstairs, 5 good-sized bedrooms provide ample accommodation, with potential to reconfigure or upgrade to suit modern tastes. The home’s generous proportions, timeless architecture and superb natural light make it a blank canvas for a discerning buyer to enhance and personalise.
OUTSIDE
Set on an expansive, south-facing plot of approx. 0.3 acres (STMS), the grounds offer the perfect balance of elegance, privacy and practicality. A sweeping driveway, framed by mature trees and established hedging, provides an impressive approach and ample parking for multiple vehicles, leading to the detached garage.
The rear garden is a true sanctuary, predominantly laid to lawn and flanked by mature planting, it enjoys excellent sun exposure throughout the day. Of particular note is the charming, timber-framed outbuilding, formerly used as a tack shed - full of character and offering exciting potential for conversion to a garden studio, office or hobby space (STPP). While a generous terrace offers the ideal spot for al fresco dining, entertaining, or simply relaxing. With space for a garden studio, pool, or further landscaping, the grounds present rare scope in such a prime city setting.
LOCATION
The NR4 area of Norwich is a highly desirable location, offering a blend of suburban calm and city convenience. Situated south-west of the city centre, it provides excellent access to the University of East Anglia, Norfolk and Norwich University Hospital, and Norwich Research Park. With strong public transport links and proximity to the A11, commuting is easy. The area boasts a range of amenities including shops, cafes, schools, and medical services. Nearby Eaton and Earlham Road offer local pubs and independent stores, while Eaton Park provides green space and leisure facilities, making NR4 ideal for families, professionals, and outdoor enthusiasts.
DIRECTIONS
ead out of Norwich on Newmarket Road and head over the roundabout with Daniels Road, then turn left onto Eaton Road. Follow the road, where the property can be found on the right-hand side, set back from the road, shortly before the City of Norwich School.
LOCAL AUTHORITY
Norwich
COUNCIL TAX BAND
F
DISCLAIMER
While we have made diligent efforts to ensure the accuracy of the information relating to each property at the point of listing, you are advised to consult the official local council website for details on conservation areas, flood risks, tree preservation orders, planning applications, and other relevant aspects. These details are for guidance purposes only and we do not seek advice from the seller's legal representative in their preparation. We also strongly advise that you inspect the property and surrounding area on Google Maps and Street View prior to viewing. The photographs do not infer that items shown are included in the sale, the measurements quoted are approximate and the fixtures, fittings and appliances have not been tested, therefore no guarantee can be given that they are in working order. If there is any point which is of particular importance to you then please obtain professional confirmation of it.
GDPR
Should you wish to view one of our properties, we will require certain pieces of personal information from you in order to provide a professional service to you and our client, the seller. The personal information you provide to us will be shared with the seller, but it will not be shared with any other third parties without your consent.
Should you wish to proceed and make an offer on a property, some of the personal information you provide to us will be passed to the seller. Again, it will not be shared with any other third parties without your consent.
More information on how we hold and process your data is available upon request or on our website.
LETTINGS SERVICES
We offer a professional, ARLA accredited Lettings and Management Service via our affiliated agency, Habi Property. If you are considering renting your property in order to purchase, are looking at buy to let or would like a free, no obligation review of your current portfolio then please contact the office to discuss this further.