Immaculate family home, enjoying a cul-de-sac position within a popular village
Offered with No Onward Chain!
Beautifully presented throughout with a fresh, modern finish, ready to move straight into
3 first floor bedrooms, including 2 comfortable doubles and a 3rd ideal as a nursery, dressing room or study
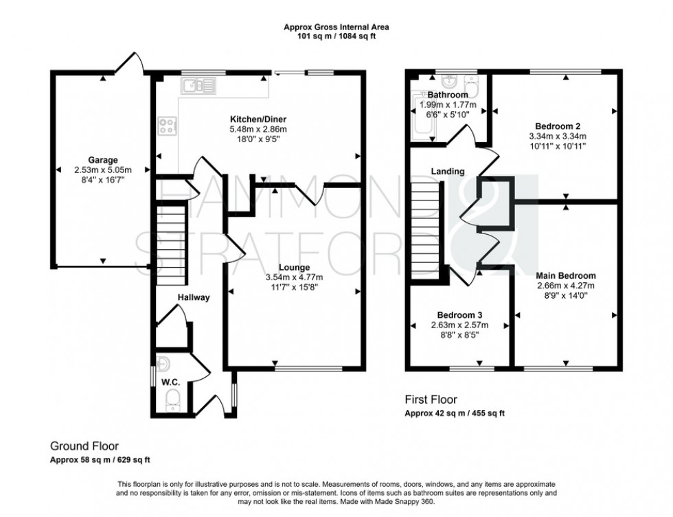
Bright and well-proportioned front lounge with a calm, homely feel
Modern kitchen/diner fitted with oven, hob and extractor, plus space for everyday dining
Ground floor WC and a stylish first floor family bathroom with shower over the bath
Air source heat pump heating system and double glazing
Single garage with electric roller door, light and power, plus generous driveway parking
Landscaped rear garden with patio, lawn and raised decked seating area designed for relaxing and entertaining
SUMMARY
As you enter the property, you are welcomed by an inviting entrance hall with a convenient ground floor WC. To the front, the lounge offers a bright and comfortable living space, perfect for relaxing, while a door leads through to the kitchen/diner at the rear. This impressive space stretches to over 18' and is fitted with modern units, integrated cooking appliances and ample room for dining, with sliding doors opening out to the garden.
Upstairs, the first floor landing leads to 3 bedrooms, including 2 well-proportioned doubles and a 3rd room ideal as a nursery, home office or dressing room. The accommodation is completed by a stylish family bathroom fitted with a shower over the bath.
Finished to a high standard throughout and ready to move straight into, this is a thoughtfully designed home that perfectly balances comfort, practicality and modern living.
OUTSIDE
Positioned within a cul-de-sac, the property enjoys a residential setting with a strong sense of privacy and minimal passing traffic. To the front, a generous shingled driveway provides ample off-road parking for multiple vehicles and leads to the single garage. The garage benefits from an electric roller door, power and lighting, along with a personal door providing access through to the rear garden.
The rear garden has been thoughtfully landscaped to create a versatile and inviting outdoor space. A patio sits immediately behind the house, ideal for outdoor dining, while a well-maintained lawn occupies the centre. To the rear corner, a raised decked seating area offers a perfect spot to relax, complemented by planted borders and a useful garden shed. Fully enclosed and accessible via the kitchen/diner and garage, the garden offers practicality for modern family living.
LOCATION
Located just six miles south-west of Norwich, Hethersett is a thriving and well-connected village offering an excellent blend of rural charm and modern convenience. With a strong sense of community, the village features a range of local amenities including shops, cafés, healthcare services, and highly regarded schools. Surrounded by open countryside and green spaces, Hethersett is ideal for those seeking a peaceful lifestyle while remaining close to the city. Excellent transport links, including nearby access to the A11 and regular bus routes, make commuting to Norwich, Cambridge, or beyond straightforward. Popular with families and professionals alike, Hethersett continues to grow as a desirable and welcoming place to call home.
DIRECTIONS
Heading away from Wymondham on Norwich Road B1172, turn left onto Norwich Road and follow the road round before turning left onto Priory Road. Follow the road round the left-hand bend where the property can be found on the right-hand side.
LOCAL AUTHORITY
South Norfolk
COUNCIL TAX BAND
C
DISCLAIMER
While we have made diligent efforts to ensure the accuracy of the information relating to each property at the point of listing, you are advised to consult the official local council website for details on conservation areas, flood risks, tree preservation orders, planning applications, and other relevant aspects. These details are for guidance purposes only and we do not seek advice from the seller's legal representative in their preparation. We also strongly advise that you inspect the property and surrounding area on Google Maps and Street View prior to viewing. The photographs do not infer that items shown are included in the sale, the measurements quoted are approximate and the fixtures, fittings and appliances have not been tested, therefore no guarantee can be given that they are in working order. If there is any point which is of particular importance to you then please obtain professional confirmation of it.
GDPR
Should you wish to view one of our properties, we will require certain pieces of personal information from you in order to provide a professional service to you and our client, the seller. The personal information you provide to us will be shared with the seller, but it will not be shared with any other third parties without your consent.
Should you wish to proceed and make an offer on a property, some of the personal information you provide to us will be passed to the seller. Again, it will not be shared with any other third parties without your consent.
More information on how we hold and process your data is available upon request or on our website.
LETTINGS SERVICES
We offer a professional, ARLA accredited Lettings and Management Service via our affiliated agency, Habi Property. If you are considering renting your property in order to purchase, are looking at buy to let or would like a free, no obligation review of your current portfolio then please contact the office to discuss this further.
Immaculate family home, enjoying a cul-de-sac position within a popular village
Offered with No Onward Chain!
Beautifully presented throughout with a fresh, modern finish, ready to move straight into
3 first floor bedrooms, including 2 comfortable doubles and a 3rd ideal as a nursery, dressing room or study
Bright and well-proportioned front lounge with a calm, homely feel
Modern kitchen/diner fitted with oven, hob and extractor, plus space for everyday dining
Ground floor WC and a stylish first floor family bathroom with shower over the bath
Air source heat pump heating system and double glazing
Single garage with electric roller door, light and power, plus generous driveway parking
Landscaped rear garden with patio, lawn and raised decked seating area designed for relaxing and entertaining
Broadband
Download
Upload
Basic
13Mb/s
1Mb/s
SuperFast
80Mb/s
20Mb/s
UltraFast
2000Mb/s
2000Mb/s
Broadband & mobile data availability at 64, PRIORY ROAD NR93EY Address shown above is the closest found to the postcode, that has Ofcom data available.