*DRAFT DETAILS AWAITING APPROVAL*
SUMMARY
A rare countryside residence: this detached cottage lies within an approx. 3.4 acre plot (STMS) and benefits from open field views and versatile accommodation.
Step through the front door that opens into the first reception room ideal for...
Charming detached clay‑lump cottage set on approx. 3.4 acre plot with sweeping rural field views
Spacious and adaptable accommodation with scope for modernisation, extension or multi‑generational living (STPP)
2 ground floor reception rooms, enjoying exposed beams and a feature fireplace to the lounge
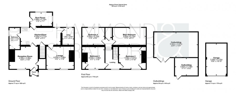
20'8 kitchen/diner with adjoining utility and boot room providing practical family accommodation
4 good-sized first floor bedrooms including 2 with storage
Ground floor family bathroom with 4-piece suite, oil-fired central heating and mostly double glazed
Generous driveway with multiple off-road parking spaces, detached garage and carport
Extensive rear garden with vegetable plots, established lawns and paddock to the rear
Situated on the edge of an idyllic rural village, yet close to neighbouring towns and amenities
*DRAFT DETAILS AWAITING APPROVAL*
SUMMARY
A rare countryside residence: this detached cottage lies within an approx. 3.4 acre plot (STMS) and benefits from open field views and versatile accommodation.
Step through the front door that opens into the first reception room ideal for formal dining or flexible family use. From here, you flow through to the generous kitchen/diner, offering scope for modernisation and connecting to both a practical utility room and separate boot room. From the kitchen/diner the lounge enjoys a cosy atmosphere with its feature inglenook fireplace and wood burner taking centre stage. A family bathroom with a 4-piece suite completes the ground floor.
Upstairs, 4 good-sized bedrooms are all accessed off the landing, 2 of which benefit from built-in storage. The property’s internal layout is versatile and presents an exciting opportunity for extension or reconfiguration to suit modern family living.
OUTSIDE
Occupying a substantial plot on the edge of a sought-after rural village, this detached cottage enjoys a tranquil setting with far-reaching field views. The plot is set behind wooden gates and benefits from a driveway providing off-road parking for multiple vehicles. A detached garage and carport sit to one side, plus a substantial barn where access continues through to the expansive rear plot - perfect for future extension or redevelopment (STPP).
The rear garden is a true highlight - with productive vegetable plots, expansive lawn, a paddock area beyond and a variety of sheds offering exceptional scope for growing, keeping animals or future development. The septic tank, oil tank and a soakaway are all situated within the boundary.
The sheer size, layout and potential of the land make this a rare countryside opportunity in a truly idyllic location.
LOCATION
Nestled in the heart of the Norfolk countryside, Rockland St Peter is a tranquil rural village that forms part of the wider parish of Rocklands. Surrounded by open farmland and woodland, the area offers a peaceful lifestyle while remaining well connected. The nearby market town of Attleborough, just a short drive away, provides a full range of amenities including supermarkets, local shops, schools, restaurants, and a mainline train station with direct links to Norwich and Cambridge. The A11 is also within easy reach, offering swift access to the city and beyond. For those seeking countryside charm without complete isolation, Rockland St Peter presents the perfect blend of quiet village life and everyday convenience.
DIRECTIONS
Head away from Attleborough via the B1077, passing Great Ellingham towards Rocklands. Follow the road and turn right onto Bell Lane, where the property can be found on the right-hand side, shortly after the junction with Bell Road.
LOCAL AUTHORITY
Breckland
COUNCIL TAX BAND
C
DISCLAIMER
While we have made diligent efforts to ensure the accuracy of the information relating to each property at the point of listing, you are advised to consult the official local council website for details on conservation areas, flood risks, tree preservation orders, planning applications, and other relevant aspects. These details are for guidance purposes only and we do not seek advice from the seller's legal representative in their preparation. We also strongly advise that you inspect the property and surrounding area on Google Maps and Street View prior to viewing. The photographs do not infer that items shown are included in the sale, the measurements quoted are approximate and the fixtures, fittings and appliances have not been tested, therefore no guarantee can be given that they are in working order. If there is any point which is of particular importance to you then please obtain professional confirmation of it.
GDPR
Should you wish to view one of our properties, we will require certain pieces of personal information from you in order to provide a professional service to you and our client, the seller. The personal information you provide to us will be shared with the seller, but it will not be shared with any other third parties without your consent.
Should you wish to proceed and make an offer on a property, some of the personal information you provide to us will be passed to the seller. Again, it will not be shared with any other third parties without your consent.
More information on how we hold and process your data is available upon request or on our website.
LETTINGS SERVICES
We offer a professional, ARLA accredited Lettings and Management Service via our affiliated agency, Habi Property. If you are considering renting your property in order to purchase, are looking at buy to let or would like a free, no obligation review of your current portfolio then please contact the office to discuss this further.
Guide Price £550,000 - £575,000
Charming detached clay‑lump cottage set on approx. 3.4 acre plot with sweeping rural field views
Spacious and adaptable accommodation with scope for modernisation, extension or multi‑generational living (STPP)
2 ground floor reception rooms, enjoying exposed beams and a feature fireplace to the lounge
20'8 kitchen/diner with adjoining utility and boot room providing practical family accommodation
4 good-sized first floor bedrooms including 2 with storage
Ground floor family bathroom with 4-piece suite, oil-fired central heating and mostly double glazed
Generous driveway with multiple off-road parking spaces, detached garage and carport
Extensive rear garden with vegetable plots, established lawns and paddock to the rear
Situated on the edge of an idyllic rural village, yet close to neighbouring towns and amenities
Broadband
Download
Upload
Basic
13Mb/s
1Mb/s
SuperFast
Not Available
Not Available
UltraFast
199Mb/s
24Mb/s
Broadband & mobile data availability at Address shown above is the closest found to the postcode, that has Ofcom data available.