An outstanding family home offering space, versatility and an enviable plot - a must view to be fully appreciated
Substantial residence extended to provide over 2,800 sq/ft. of immaculate accommodation
Offered with No Onward Chain!
Impressive kitchen/diner with a large central island/breakfast bar and integrated appliances
Spacious triple aspect lounge with striking inglenook fireplace and wood burner to the centre
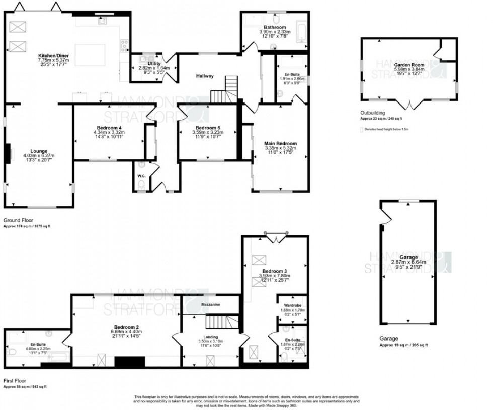
5 double bedrooms across 2 floors, including a ground floor main bedroom with en-suite and wardrobes
Contemporary family bathroom with a striking 4-piece suite, separate WC and a further 2 en-suite shower rooms
Energy-efficient home with air source heat pump, underfloor heating to the ground floor and double glazing
Extensive driveway providing parking for multiple vehicles, plus a detached garage with power and light
Approx. 0.25 acre plot with an expansive rear garden, patio seating area and versatile garden room
SUMMARY
This beautifully extended and thoughtfully updated home offers a highly versatile layout, perfectly suited to modern family living. The ground floor centres around a stunning kitchen/diner, featuring a central island with breakfast bar seating and a comprehensive range of integrated appliances. Overhead skylights and bi-folding doors flood the space with natural light while providing a seamless connection to the garden, creating a hub for everyday living. A utility room sits off the kitchen, adding further practicality.
The triple aspect lounge provides a warm and inviting contrast with an impressive inglenook fireplace housing a wood burner, creating a cosy yet spacious environment for relaxation. The ground floor also offers excellent flexibility with 3 well-proportioned bedrooms, including a main bedroom suite with fitted wardrobes and a contemporary en-suite shower room, alongside a modern family bathroom and an additional separate WC.
Upstairs, a central landing leads to 2 further double bedrooms; the second bedroom is particularly impressive in scale and benefits from its own en-suite bathroom, while bedroom 3 also enjoys en-suite facilities and access to a dedicated wardrobe space, enhancing the sense of luxury and practicality.
Finished throughout with a modern, neutral aesthetic and complemented by energy-efficient features including underfloor heating to the ground floor, this is a home that perfectly balances comfort, style and functionality, offering generous and adaptable accommodation ideal for family life.
OUTSIDE
Occupying an enviable position within a well-regarded setting, the property enjoys a generous plot of approx. 0.25 acres (STMS), backing directly onto open countryside and offering far-reaching field views with a wonderful sense of space and seclusion. To the front, the property is approached via an expansive driveway providing off-road parking for multiple vehicles, alongside access to the garage benefitting from light and power. The frontage is neatly enclosed by mature hedging, creating an attractive first impression.
The rear garden is a true highlight, predominantly laid to lawn and enjoying a high degree of privacy. A generous patio spans the rear of the property, creating a superb space for outdoor dining and entertaining. The contemporary garden room is a standout addition, thoughtfully designed offering excellent versatility, ideal for a home office, gym, studio or relaxation area.
All of this is set against uninterrupted views across open fields, creating a truly special outdoor environment.
LOCATION
Bunwell is a peaceful and well-connected South Norfolk village offering an ideal blend of countryside living and convenience. Located around 5 miles from Attleborough and 15 miles from Norwich, it provides a rural retreat within easy reach of major amenities and transport links, including the A11 and rail services. The village enjoys a strong sense of community, centred around its well-regarded primary school, local church, and village hall which hosts a variety of events and clubs. Surrounded by open farmland and scenic walking routes, Bunwell is perfect for families, nature lovers, and those seeking a slower pace of life while staying well-connected to the wider region.
DIRECTIONS
Head into Bunwell on Bunwell Street and turn right at the local post office and village store onto North Road, where the property can be found on the right-hand side.
AGENTS NOTE
Please be advised the property is currently on 2 titles, some photos have been computer generated and we have yet to see building regulations for the extensions and the garden room.
SECTION 21 CONNECTED PERSON
Please be advised the Seller is an employee of Hammond & Stratford Estate Agents.
LOCAL AUTHORITY
South Norfolk
COUNCIL TAX BAND
C
DISCLAIMER
While we have made diligent efforts to ensure the accuracy of the information relating to each property at the point of listing, you are advised to consult the official local council website for details on conservation areas, flood risks, tree preservation orders, planning applications, and other relevant aspects. These details are for guidance purposes only and we do not seek advice from the seller's legal representative in their preparation. We also strongly advise that you inspect the property and surrounding area on Google Maps and Street View prior to viewing. The photographs do not infer that items shown are included in the sale, the measurements quoted are approximate and the fixtures, fittings and appliances have not been tested, therefore no guarantee can be given that they are in working order. If there is any point which is of particular importance to you then please obtain professional confirmation of it.
GDPR
Should you wish to view one of our properties, we will require certain pieces of personal information from you in order to provide a professional service to you and our client, the seller. The personal information you provide to us will be shared with the seller, but it will not be shared with any other third parties without your consent.
Should you wish to proceed and make an offer on a property, some of the personal information you provide to us will be passed to the seller. Again, it will not be shared with any other third parties without your consent.
More information on how we hold and process your data is available upon request or on our website.
LETTINGS SERVICES
We offer a professional, ARLA accredited Lettings and Management Service via our affiliated agency, Habi Property. If you are considering renting your property in order to purchase, are looking at buy to let or would like a free, no obligation review of your current portfolio then please contact the office to discuss this further.
An outstanding family home offering space, versatility and an enviable plot - a must view to be fully appreciated
Substantial residence extended to provide over 2,800 sq/ft. of immaculate accommodation
Offered with No Onward Chain!
Impressive kitchen/diner with a large central island/breakfast bar and integrated appliances
Spacious triple aspect lounge with striking inglenook fireplace and wood burner to the centre
5 double bedrooms across 2 floors, including a ground floor main bedroom with en-suite and wardrobes
Contemporary family bathroom with a striking 4-piece suite, separate WC and a further 2 en-suite shower rooms
Energy-efficient home with air source heat pump, underfloor heating to the ground floor and double glazing
Extensive driveway providing parking for multiple vehicles, plus a detached garage with power and light
Approx. 0.25 acre plot with an expansive rear garden, patio seating area and versatile garden room
Broadband
Download
Upload
Basic
20Mb/s
1Mb/s
SuperFast
80Mb/s
20Mb/s
UltraFast
1000Mb/s
1000Mb/s
Broadband & mobile data availability at Address shown above is the closest found to the postcode, that has Ofcom data available.