Previously extended detached bungalow boasting a huge amount of potential - A must view property!
A captivating 2.8 acre plot (STMS) enjoying enviable views of far-reaching fields and a tranquil riverfront
Separate 2 bedroom annexe already bricked, roofed and windowed, offering an ideal blank canvas
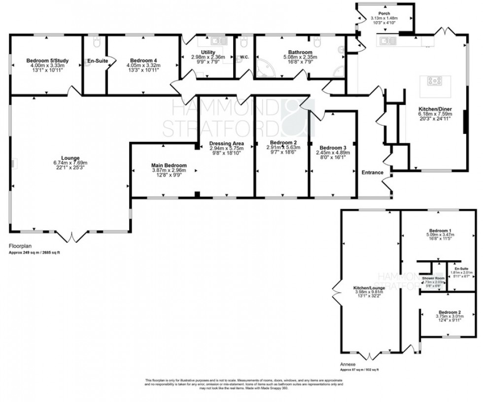
4/5 bedrooms across the property, including a versatile bedroom 5, providing flexibility for a study
Extensive L-shaped lounge to the heart of the home, enjoying a feature fireplace and triple aspect views of the stunning grounds
Generous kitchen/diner featuring a central island, garden access and separate utility off the hallway
En-suite shower room to one bedroom, family bathroom with 4-piece suite and additional adjacent WC
Off-road parking for multiple vehicles, plus the erection of a garage included within the annexe plans
Stunning nature pond to the centre of the plot, plus a gated paddock area with a block of multiple stables/stalls
*DRAFT DETAILS AWAITING APPROVAL*
SUMMARY
A fantastic opportunity awaits with this substantial detached bungalow, offering over 2,680 sq/ft. of versatile accommodation set within breathtaking grounds. At the heart of the home lies an impressive L-shaped lounge, a truly expansive space enhanced by triple aspect views across the gardens, French doors opening onto the grounds and a feature fireplace creating a warm and inviting focal point.
The generous kitchen/diner provides excellent proportions, complete with a central island, extensive cabinetry and ample dining space. With direct garden access and a separate utility room conveniently positioned off the hallway, the layout offers practicality alongside sociable living.
The bedroom accommodation is well arranged, with a generous main bedroom, further double bedrooms and a versatile 5th bedroom offering flexibility as a study or hobby room. The family bathroom features a 4-piece suite, complemented by a separate WC, while bedroom 4 benefits from an en-suite shower room.
Positioned within the grounds, the separate annexe structure - already bricked, roofed and windowed - presents a blank canvas ready to be transformed into bespoke additional accommodation, ideal for multi-generational living, guest quarters or potential income use (subject to relevant permissions).
Altogether, this is a rare and exciting opportunity to acquire a home of scale, setting and exceptional potential - a magnificent country residence ready to be shaped into something truly special.
OUTSIDE
Occupying an enviable position within a plot of approximately 2.8 acres (STMS), this remarkable home enjoys a secluded and picturesque setting, surrounded by open countryside and far-reaching field views. Approached via a private driveway offering extensive off-road parking for multiple vehicles, the former garage has been removed and replaced with an annexe building, with approved planning that includes the reinstatement of a garage within the design.
The grounds themselves are nothing short of breathtaking. A stunning nature pond forms a tranquil centrepiece, while part of the boundary is bordered by a peaceful river and mature trees, creating a beautiful and private backdrop. Expansive lawns extend towards a block of multiple stables/stalls with an adjacent fenced paddock, ideal for equestrian use or lifestyle pursuits. A true haven for nature lovers.
LOCATION
Forncett St Peter is a peaceful and rural Norfolk village, offering a quintessential countryside lifestyle with strong community spirit. Surrounded by rolling fields and quiet lanes, the village provides a truly tranquil setting while remaining within easy reach of nearby towns such as Long Stratton and Wymondham. The area is popular with families and those seeking a slower pace of life, with well-regarded schools and local services accessible in neighbouring villages. Forncett St Peter is also just a short drive from the A140 and A11, making it a convenient choice for commuters heading to Norwich, Thetford or further afield. With its beautiful rural surroundings and sense of seclusion, the village offers a charming retreat from the bustle of modern life.
DIRECTIONS
From the A140 Ipswich Road, in the village of Long Stratton turn off onto Flowerpot Lane and at the bend turn left onto Stratton Road. Follow through the village of Wacton and beyond the village hall turn right onto Wash Lane. Continue to the road's end and turn left onto Aslacton Road where the property can be found on the left.
AGENTS NOTE
Please be advised the annexe is at first fix stage, the planning also includes the erection of a garage, (South Norfolk - 2021/1414) please contact the office for more details. A utility pole, oil tank and a new septic tank (January 2026) are located within the plot.
LOCAL AUTHORITY
South Norfolk
COUNCIL TAX BAND
E
DISCLAIMER
While we have made diligent efforts to ensure the accuracy of the information relating to each property at the point of listing, you are advised to consult the official local council website for details on conservation areas, flood risks, tree preservation orders, planning applications, and other relevant aspects. These details are for guidance purposes only and we do not seek advice from the seller's legal representative in their preparation. We also strongly advise that you inspect the property and surrounding area on Google Maps and Street View prior to viewing. The photographs do not infer that items shown are included in the sale, the measurements quoted are approximate and the fixtures, fittings and appliances have not been tested, therefore no guarantee can be given that they are in working order. If there is any point which is of particular importance to you then please obtain professional confirmation of it.
GDPR
Should you wish to view one of our properties, we will require certain pieces of personal information from you in order to provide a professional service to you and our client, the seller. The personal information you provide to us will be shared with the seller, but it will not be shared with any other third parties without your consent.
Should you wish to proceed and make an offer on a property, some of the personal information you provide to us will be passed to the seller. Again, it will not be shared with any other third parties without your consent.
More information on how we hold and process your data is available upon request or on our website.
LETTINGS SERVICES
We offer a professional, ARLA accredited Lettings and Management Service via our affiliated agency, Habi Property. If you are considering renting your property in order to purchase, are looking at buy to let or would like a free, no obligation review of your current portfolio then please contact the office to discuss this further.
Guide Price £900,000 - £950,000
Previously extended detached bungalow boasting a huge amount of potential - A must view property!
A captivating 2.8 acre plot (STMS) enjoying enviable views of far-reaching fields and a tranquil riverfront
Separate 2 bedroom annexe already bricked, roofed and windowed, offering an ideal blank canvas
4/5 bedrooms across the property, including a versatile bedroom 5, providing flexibility for a study
Extensive L-shaped lounge to the heart of the home, enjoying a feature fireplace and triple aspect views of the stunning grounds
Generous kitchen/diner featuring a central island, garden access and separate utility off the hallway
En-suite shower room to one bedroom, family bathroom with 4-piece suite and additional adjacent WC
Off-road parking for multiple vehicles, plus the erection of a garage included within the annexe plans
Stunning nature pond to the centre of the plot, plus a gated paddock area with a block of multiple stables/stalls
Broadband
Download
Upload
Basic
2Mb/s
0Mb/s
SuperFast
58Mb/s
11Mb/s
UltraFast
1000Mb/s
1000Mb/s
Broadband & mobile data availability at Address shown above is the closest found to the postcode, that has Ofcom data available.