Beautifully presented semi-detached townhouse situated within an enviable position overlooking greenspace
Offered with No Onward Chain and NHBC warranty remaining!
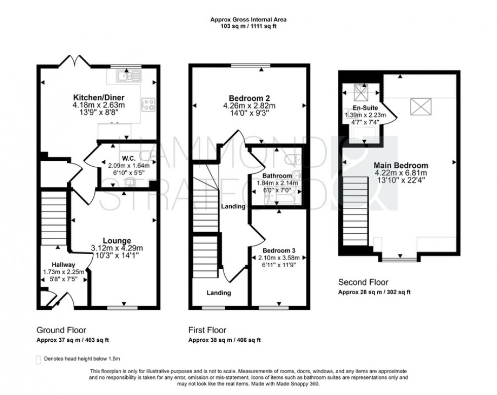
Spacious main bedroom occupying the entire second floor with stylish en-suite shower room
2 further well-proportioned bedrooms served by a modern family bathroom on the first floor
Bright and comfortable lounge, accessed from the entrance, creating a welcoming space to relax
Contemporary kitchen with integrated appliances, dining area and French doors opening onto the garden
Ground floor WC/utility, gas central heating and double glazing
Side by side off-road parking to the right-hand side of the property
Enclosed rear garden with a patio area ideal for entertaining and outdoor dining
*DRAFT DETAILS AWAITING APPROVAL*
SUMMARY
Offered with No Onward Chain and NHBC warranty remaining, this modern 3 bedroom semi-detached home offers stylish and practical accommodation arranged over 3 floors - ideal for families. The ground floor centres around a contemporary kitchen/diner with integrated appliances and French doors opening onto the rear garden, alongside a comfortable lounge creating a relaxing space to unwind.
Upstairs, 2 good-sized bedrooms are served by a modern family bathroom, while the second floor is dedicated to a spacious main bedroom complete with en-suite shower room and excellent proportions, creating a peaceful retreat within the home. A fantastic opportunity to secure a stylish and well-presented family home in a popular village location.
OUTSIDE
Positioned on the edge of the development and overlooking attractive green space to the front, the property enjoys a pleasant outlook and a greater sense of openness than many modern homes. The frontage is neatly presented with a pathway leading to the entrance, while to the side of the property a driveway provides side-by-side off-road parking.
To the rear, the approx. 20' max. garden is fully enclosed and designed with ease of maintenance in mind, featuring patio space ideal for outdoor dining, entertaining or simply relaxing.
LOCATION
Located just six miles south-west of Norwich, Hethersett is a thriving and well-connected village offering an excellent blend of rural charm and modern convenience. With a strong sense of community, the village features a range of local amenities including shops, cafés, healthcare services, and highly regarded schools. Surrounded by open countryside and green spaces, Hethersett is ideal for those seeking a peaceful lifestyle while remaining close to the city. Excellent transport links, including nearby access to the A11 and regular bus routes, make commuting to Norwich, Cambridge, or beyond straightforward. Popular with families and professionals alike, Hethersett continues to grow as a desirable and welcoming place to call home.
DIRECTIONS
From Colney Lane turn into Harness Maker Way and follow the road all the way round and turn right onto Little Melton Road. Turn right onto Blacksmith Crescent where the property can be found on the left-hand side overlooking greenspace.
AGENTS NOTE
We have been advised that service charges apply, however we are currently awaiting documents to confirm these details.
LOCAL AUTHORITY
South Norfolk
COUNCIL TAX BAND
D
DISCLAIMER
While we have made diligent efforts to ensure the accuracy of the information relating to each property at the point of listing, you are advised to consult the official local council website for details on conservation areas, flood risks, tree preservation orders, planning applications, and other relevant aspects. These details are for guidance purposes only and we do not seek advice from the seller's legal representative in their preparation. We also strongly advise that you inspect the property and surrounding area on Google Maps and Street View prior to viewing. The photographs do not infer that items shown are included in the sale, the measurements quoted are approximate and the fixtures, fittings and appliances have not been tested, therefore no guarantee can be given that they are in working order. If there is any point which is of particular importance to you then please obtain professional confirmation of it.
GDPR
Should you wish to view one of our properties, we will require certain pieces of personal information from you in order to provide a professional service to you and our client, the seller. The personal information you provide to us will be shared with the seller, but it will not be shared with any other third parties without your consent.
Should you wish to proceed and make an offer on a property, some of the personal information you provide to us will be passed to the seller. Again, it will not be shared with any other third parties without your consent.
More information on how we hold and process your data is available upon request or on our website.
LETTINGS SERVICES
We offer a professional, ARLA accredited Lettings and Management Service via our affiliated agency, Habi Property. If you are considering renting your property in order to purchase, are looking at buy to let or would like a free, no obligation review of your current portfolio then please contact the office to discuss this further.
Guide Price £300,000 - £325,000
Beautifully presented semi-detached townhouse situated within an enviable position overlooking greenspace
Offered with No Onward Chain and NHBC warranty remaining!
Spacious main bedroom occupying the entire second floor with stylish en-suite shower room
2 further well-proportioned bedrooms served by a modern family bathroom on the first floor
Bright and comfortable lounge, accessed from the entrance, creating a welcoming space to relax
Contemporary kitchen with integrated appliances, dining area and French doors opening onto the garden
Ground floor WC/utility, gas central heating and double glazing
Side by side off-road parking to the right-hand side of the property
Enclosed rear garden with a patio area ideal for entertaining and outdoor dining
Broadband
Download
Upload
Basic
18Mb/s
1Mb/s
SuperFast
70Mb/s
15Mb/s
UltraFast
1800Mb/s
900Mb/s
Broadband & mobile data availability at 40, BLACKSMITH CRESCENT NR93RZ Address shown above is the closest found to the postcode, that has Ofcom data available.