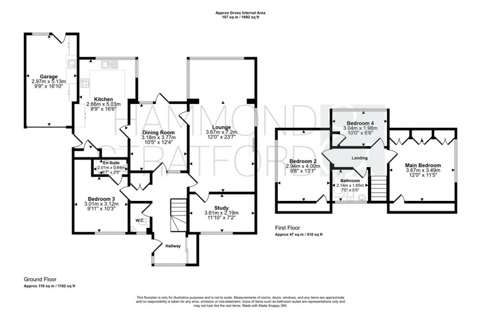
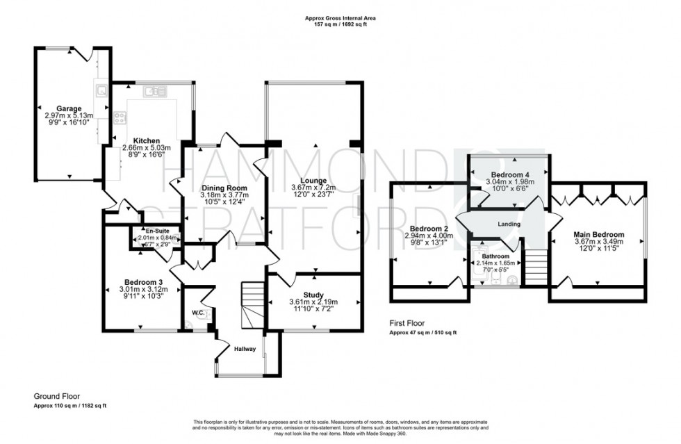
This spacious chalet offers an adaptable layout perfect for a range of lifestyles. An entrance hall connects to the generous dual aspect lounge, bathed in natural light and centred around a fireplace. A separate study offers an ideal home office setup. The separate dining room provides a lovely...
Detached home enjoying a tucked away cul-de-sac location off the prestigious Colney Lane
Extended to provide over 1,500 sq/ft. of deceptively spacious accommodation - offered chain free!
Generous dual aspect lounge with feature fireplace and adjacent study/office space
Separate dining room with garden access - ideal for family dining or hosting
Fitted kitchen with pantry cupboard, integrated oven, hob and extractor, plus scope to update
Ground floor bedroom with en-suite shower room - perfect for guests or multi-generational living
3 first floor bedrooms including a 12' main bedroom with built-in storage
Gas central heating, double glazing, ground floor WC and first floor family bathroom
Set on an approx. 0.19 acre (STMS) south-facing plot with lawn, mature trees, carport, garage and off-road parking
Ideally situated for local amenities, Waitrose supermarket, public houses/restaurants, green space and idyllic river walks along the River Yare
*DRAFT DETAILS AWAITING APPROVAL*
SUMMARY
This spacious chalet offers an adaptable layout perfect for a range of lifestyles. An entrance hall connects to the generous dual aspect lounge, bathed in natural light and centred around a fireplace. A separate study offers an ideal home office setup. The separate dining room provides a lovely space for entertaining, with garden access. The fitted kitchen includes a built-in oven, hob and extractor fan, along with a pantry cupboard. A ground floor bedroom with an en-suite shower room adds excellent flexibility - ideal for guests, dependent relatives, or multi-generational living.
Upstairs, the landing leads to 3 further bedrooms, including built-in storage to the main bedroom, all served by a family bathroom with 3-piece suite. While the property would benefit from some cosmetic updating, the footprint, proportions and plot offer excellent potential to personalise and modernise.
OUTSIDE
Occupying an enviable position, this detached chalet enjoys an idyllic setting on an approx. 0.19 acre south-facing plot. The front offers a pleasant first impression, with a well-kept lawn and neat hedging. A driveway provide off-road parking for multiple vehicles, continuing beneath a carport to a garage, which features an electric roller door, power, lighting and currently used as a utility area.
The south-facing rear garden is thoughtfully arranged, offering a mix of lawn, mature trees and a raised section to the rear that adds further dimension to the space. A patio area sits behind the house - ideal for outdoor dining. The garden backs onto a right of way lane, part of which belongs to the property and falls under its responsibility to maintain. The overall outside space is perfect for families, gardeners or those seeking an outdoor retreat.
LOCATION
Cringleford is a highly desirable suburb located approximately 2 miles southwest of Norwich city centre. Known for its blend of historic charm and modern developments, the village offers excellent amenities, including a well-regarded primary school, local shops, and green spaces. Its close proximity to Eaton—just a short drive or bus ride away—provides residents with additional shopping options, eateries, and access to the University of East Anglia. Cringleford also benefits from being moments away from the Norfolk and Norwich University Hospital, Sportspark, and Norwich Research Park, making it especially popular with academics, healthcare professionals, and families seeking an affluent and well-connected neighbourhood. Its location near the A11 also makes it ideal for commuters heading towards Cambridge and London.
DIRECTIONS
From the crossroads and traffic lights in the centre of Eaton, take Eaton Street passing the entrance to Waitrose supermarket and cross over Cringleford Bridge. Follow the road as it becomes Newmarket Road before turning right onto Colney Lane and pass over the A11. Turn left onto Newfound Drive, where the property can be found on the left-hand side.
LOCAL AUTHORITY
South Norfolk
COUNCIL TAX BAND
F
DISCLAIMER
While we have made diligent efforts to ensure the accuracy of the information relating to each property at the point of listing, you are advised to consult the official local council website for details on conservation areas, flood risks, tree preservation orders, planning applications, and other relevant aspects. These details are for guidance purposes only and we do not seek advice from the seller's legal representative in their preparation. We also strongly advise that you inspect the property and surrounding area on Google Maps and Street View prior to viewing. The photographs do not infer that items shown are included in the sale, the measurements quoted are approximate and the fixtures, fittings and appliances have not been tested, therefore no guarantee can be given that they are in working order. If there is any point which is of particular importance to you then please obtain professional confirmation of it.
GDPR
Should you wish to view one of our properties, we will require certain pieces of personal information from you in order to provide a professional service to you and our client, the seller. The personal information you provide to us will be shared with the seller, but it will not be shared with any other third parties without your consent.
Should you wish to proceed and make an offer on a property, some of the personal information you provide to us will be passed to the seller. Again, it will not be shared with any other third parties without your consent.
More information on how we hold and process your data is available upon request or on our website.
LETTINGS SERVICES
We offer a professional, ARLA accredited Lettings and Management Service via our affiliated agency, Habi Property. If you are considering renting your property in order to purchase, are looking at buy to let or would like a free, no obligation review of your current portfolio then please contact the office to discuss this further.
Detached home enjoying a tucked away cul-de-sac location off the prestigious Colney Lane
Extended to provide over 1,500 sq/ft. of deceptively spacious accommodation - offered chain free!
Generous dual aspect lounge with feature fireplace and adjacent study/office space
Separate dining room with garden access - ideal for family dining or hosting
Fitted kitchen with pantry cupboard, integrated oven, hob and extractor, plus scope to update
Ground floor bedroom with en-suite shower room - perfect for guests or multi-generational living
3 first floor bedrooms including a 12' main bedroom with built-in storage
Gas central heating, double glazing, ground floor WC and first floor family bathroom
Set on an approx. 0.19 acre (STMS) south-facing plot with lawn, mature trees, carport, garage and off-road parking
Ideally situated for local amenities, Waitrose supermarket, public houses/restaurants, green space and idyllic river walks along the River Yare
Broadband
Download
Upload
Basic
6Mb/s
0.8Mb/s
SuperFast
45Mb/s
10Mb/s
UltraFast
Not Available
Not Available
Broadband & mobile data availability at 7, NEWFOUND DRIVE NR47RY Address shown above is the closest found to the postcode, that has Ofcom data available.