LAUNCH DAY - SUNDAY 8TH MARCH - BY APPOINTMENT ONLY. Spacious 4 bedroom detached home with superb potential, south-east facing garden, garage and parking in a sought-after Eaton cul-de-sac.
Detached family home enjoying a tucked-away position towards the end of a desirable cul-de-sac
Offering fantastic potential for modernisation, creating a superb long-term family home
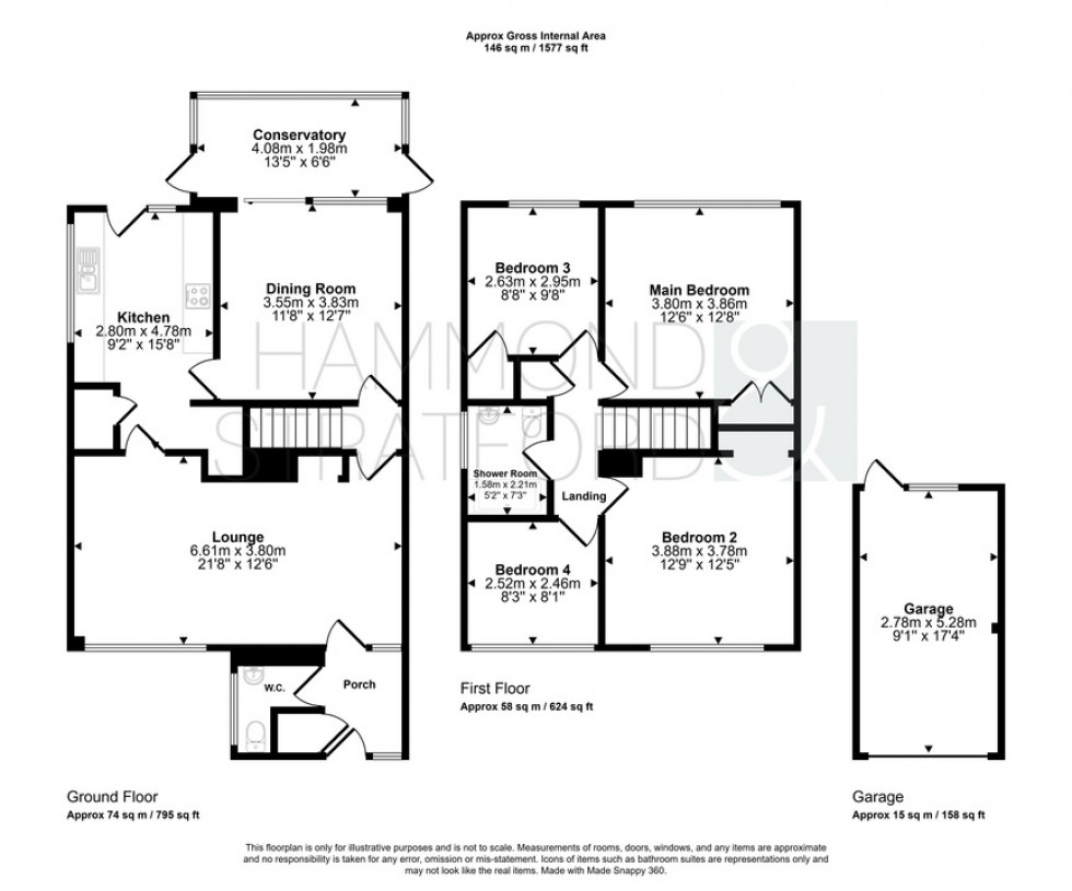
Generous 21'8 lounge filled with natural light to the front of the home
Spacious kitchen with integrated oven, hob and extractor, plus additional pantry storage
Separate dining room opening into a bright conservatory overlooking the rear garden
4 good-sized first floor bedrooms including 3 with storage and a shower room off the hallway
Ground floor WC, gas central heating and double glazing
Off-road parking via a resin driveway with carport and garage providing light and power
Approx. 40' max. south-east facing rear garden with patio, lawn and pond - offering excellent landscaping potential
Desirable location in Eaton, close to Eaton Primary School and local amenities
*DRAFT DETAILS AWAITING APPROVAL*
LAUNCH DAY - SUNDAY 8TH MARCH - BY APPOINTMENT ONLY
SUMMARY
As you enter the property, the porch provides access to the ground floor accommodation, including a convenient WC. To the front of the property, a spacious lounge measuring over 21' is filled with natural light. The kitchen sits to the rear with integrated oven, hob and extractor, along with a useful pantry. From here, the layout flows into the dining room, which opens through to a bright conservatory overlooking the garden, creating a great space for family gatherings or entertaining.
Upstairs, 4 bedrooms lead from the landing, including 3 benefiting from storage, alongside a family shower room. Offering fantastic scope for updating, this home provides a superb opportunity to create a stylish long-term family residence in a highly desirable Eaton location.
OUTSIDE
Positioned within a cul-de-sac in the popular suburb of Eaton, the property enjoys a residential setting with similar family homes nearby. To the front, a lawned garden sits alongside a resin driveway which leads towards the carport and integral garage which benefits from power and lighting, providing off-road parking for multiple vehicles.
The approx. 40' max. south-east facing rear garden offers excellent potential for landscaping. Currently arranged across a gentle slope, the garden features a patio area immediately behind the property with steps leading down to a lawned section and a small pond. Enclosed by fencing and enjoying plenty of natural light, the space provides a fantastic opportunity to create a beautifully designed outdoor garden retreat.
LOCATION
Eaton is a highly sought-after suburb of Norwich, offering a perfect balance of village charm and urban convenience. Centred around a bustling village hub, Eaton boasts a range of independent shops, cafés, and pubs, along with everyday essentials like a supermarket, post office, and doctors’ surgery. The area is well known for its green spaces—including the beautifully landscaped Eaton Park—excellent schools, and its close proximity to the University of East Anglia. Golf enthusiasts will also appreciate the presence of Eaton Golf Club, a prestigious and friendly members’ club offering a scenic and challenging 18-hole course just moments from the village centre. With the city centre just 2 miles away and easy access to the A11 and A47, Eaton appeals to families, professionals, and retirees alike who value community spirit and a peaceful yet connected lifestyle. Its mix of period properties and modern homes adds to the area’s enduring appeal.
DIRECTIONS
From the crossroads and traffic lights in Eaton turn into Church Lane, passing Waitrose supermarket on your right. Turn left into Greenways and follow the road around the right-hand bend. Just after the turning for Brentwood, the property can be found on the right-hand side, shortly after the turning for Bradeham Way.
LOCAL AUTHORITY
Norwich
COUNCIL TAX BAND
E
DISCLAIMER
While we have made diligent efforts to ensure the accuracy of the information relating to each property at the point of listing, you are advised to consult the official local council website for details on conservation areas, flood risks, tree preservation orders, planning applications, and other relevant aspects. These details are for guidance purposes only and we do not seek advice from the seller's legal representative in their preparation. We also strongly advise that you inspect the property and surrounding area on Google Maps and Street View prior to viewing. The photographs do not infer that items shown are included in the sale, the measurements quoted are approximate and the fixtures, fittings and appliances have not been tested, therefore no guarantee can be given that they are in working order. If there is any point which is of particular importance to you then please obtain professional confirmation of it.
GDPR
Should you wish to view one of our properties, we will require certain pieces of personal information from you in order to provide a professional service to you and our client, the seller. The personal information you provide to us will be shared with the seller, but it will not be shared with any other third parties without your consent.
Should you wish to proceed and make an offer on a property, some of the personal information you provide to us will be passed to the seller. Again, it will not be shared with any other third parties without your consent.
More information on how we hold and process your data is available upon request or on our website.
LETTINGS SERVICES
We offer a professional, ARLA accredited Lettings and Management Service via our affiliated agency, Habi Property. If you are considering renting your property in order to purchase, are looking at buy to let or would like a free, no obligation review of your current portfolio then please contact the office to discuss this further.
Detached family home enjoying a tucked-away position towards the end of a desirable cul-de-sac
Offering fantastic potential for modernisation, creating a superb long-term family home
Generous 21'8 lounge filled with natural light to the front of the home
Spacious kitchen with integrated oven, hob and extractor, plus additional pantry storage
Separate dining room opening into a bright conservatory overlooking the rear garden
4 good-sized first floor bedrooms including 3 with storage and a shower room off the hallway
Ground floor WC, gas central heating and double glazing
Off-road parking via a resin driveway with carport and garage providing light and power
Approx. 40' max. south-east facing rear garden with patio, lawn and pond - offering excellent landscaping potential
Desirable location in Eaton, close to Eaton Primary School and local amenities
Broadband
Download
Upload
Basic
16Mb/s
1Mb/s
SuperFast
80Mb/s
20Mb/s
UltraFast
1800Mb/s
220Mb/s
Broadband & mobile data availability at 136, GREENWAYS NR46HA Address shown above is the closest found to the postcode, that has Ofcom data available.